040 211 360

„HUMBOLDTHAUS” - Im Herzen der HafenCity vis-á-vis von Elphi, Elbe und Hafen finden Sie diese flexibel aufteilbaren Büros mit modernem Ausbau und Tiefgarage! „HUMBOLDTHAUS”, Am Sandtorkai 37, 20457 Hamburg HafenCity

Mit Dusche
HafenCity

UNSERE IMMOBILIENBERATER:INNEN FREUEN SICH AUF IHREN ANRUF!

Abteilung Bürovermietung

040 - 211 360
Kontakt

Objekt Nr. 352

Schnellübersicht

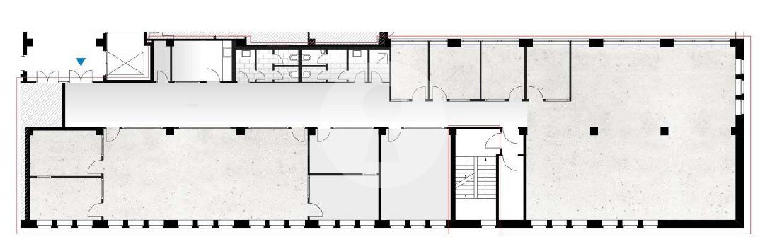
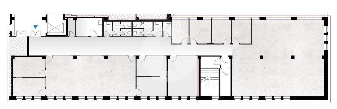
Freie Flächen: ca. 452 m² Teilbar ab: ca. 452 m² Nettokaltmiete ab: 24,50 €/m²/mtl. Bezug ab: nach Vereinbarung

Kurzbeschreibung

Mieten Sie Ihr neues Büro doch im “HUMBOLDTHAUS” - mittendrin im Herzen der HafenCity!

Das „HUMBOLDTHAUS” - entstanden aus einem ehemaligen Speicher - ist Teil des namhaften und über Hamburgs Grenzen hinaus bekannten Bürogebäudeensembles „Hanseatic-Trade-Center”, das hervorragende Blickachsen auf den Hamburger Hafen, die Elbe und die Elbphilharmonie bietet.

Darüber hinaus präsentiert sich das „Humboldthaus” mit modernen Büros in Wasserlage und hauseigenen PKW-Stellplätzen in der Tiefgarage. 

Über ein elegantes Entrée mit drei Personenaufzügen erschließen Sie die hellen Büroflächen. 

Flexibel aufteilbare Grundrisse bieten vielseitige Möglichkeiten für alle Büroformen wie Einzel- und Doppelbüros, Team- und Gruppenbüros und auch kommunikative Flächen wie open Space. 

In Absprache mit den neuen Mietern erfolgt ein Neuausbau der Flächen und eine schlüsselfertige Übergabe.

Gern zeigen wir Ihnen Ihr neues Büro! Auf Ihren Anruf freuen wir uns.

AUSSTATTUNGSMERKMALE

  • innenliegender Blendschutz
  • schlüssiges Beleuchtungskonzept
  • teilweise Glaselemente wie Glaswände, Glasseitenfelder
  • Hohlraumboden inkl. KAT7-Verkabelung vom Vormieter
  • klimatisierter Serverraum
  • Glasfaseranschluss im Gebäude
  • Fahrradabstellplätze im Gebäude
  • flexible Raumaufteilung nach Mieterabsprache

Provision

Eine Anmietung erfolgt provisionsfrei für den Mieter bei einer Mietvertragslaufzeit von mindestens 5 Jahren.

Mietpreis

Der Mietpreis beträgt ab 24,50 €/m² mtl. + 3,50 €/m² mtl. Nebenkostenvorauszahlung jeweils zzgl. gesetzlicher Mehrwertsteuer und ist abhängig von der Ausstattung und der Lage im Objekt.

ANMERKUNGEN

BILDMATERIAL:
Bei dem hier zur Ansicht gestellten Bildmaterial handelt es sich um beispielhafte Mieterausbauten innerhalb des Gebäudes.

ENERGIEAUSWEIS:
Ab 01. Mai 2014 sind alle Immobilienanbieter gemäß §§ 16, 16 a EnEV (EnEV 2014) verpflichtet, in ihren Immobilienanzeigen und Exposés Angaben zu den energetischen Kennwerten der Immobilie zu veröffentlichen sowie bei Besichtigungen zu überreichen. Dieser Nachweis wurde entsprechend der gesetzlichen Vorgaben von uns bei dem Eigentümer I Vermieter abgefordert. Sofern uns ein Energieausweis bereits vorliegt, können wir Ihnen eine Kopie I das Original als Nachweis aushändigen. Für den Fall, dass uns noch kein Energieausweis vorliegt, bitten wir um Ihr Verständnis, dass dieser nachgereicht werden muss.

Das passende Objekt ist für Sie noch nicht dabei?

Über unser hier präsentiertes Portfolio hinaus führen wir weitere Objekte in der Vermietung, 
die wir jedoch nicht veröffentlichen. Sollten Sie daher Ihr Wunschobjekt noch nicht gefunden
haben, bitten wir Sie, direkt mit uns Kontakt aufzunehmen.
Wir können Ihnen weitere exklusive Angebote unterbreiten.
Auf Ihre Nachricht freuen wir uns!

040 – 211 360
info@hamburgerimmobilienteam.de

Meine Merkliste ( Einträge auf der Merkliste)
Aus Merkliste löschen
Zurück zur Suche

Diese Immobilien können sie auch interessieren.

Hier finden Sie weitere Büroflächenangebote ganz in der Nähe.

Provisionsfrei
HIT Alleinauftrag
Mit Terrasse
Mit Alsterblick
Innenstadt

„ESPLANADEBAU”

Büros mit Terrasse & Alsterblick. Nur 50 m zur Alster. Kurze Laufzeit möglich!
Fläche in m² ab ca. 6.773 6773
Teilbar in m² ab ca. 1.165
Miete in €/m²/mtl. ab 18,00 18.00
Provisionsfrei
Mit Alsterblick
Östliche Alsterlage (St. Georg)

„ADA47” Alsterbüros!

Das beste Alsterbüro mieten Sie hier. Repräsentativ, modern & PKW-Stellplätze!
Fläche in m² ab ca. 465 465
Teilbar in m² ab ca. 465
Miete in €/m²/mtl. ab 21,50 21.50
Provisionsfrei
Mit Dusche
360° Ausblick
Innenstadt

„EMPORIO TOWER”

Traumbüros - Hoch hinaus mit spektakulärem Panoramablick in Bestlage der City!
Fläche in m² ab ca. 1.081 1081
Teilbar in m² ab ca. 1.081
Miete in €/m²/mtl. ab 27,50 27.50
Provisionsfrei
HIT Alleinauftrag
Mit Alsterblick
Östliche Alsterlage (St. Georg)

„KONTORHAUS ALSTER”

Top Alsterbüros mit Alsterblick, Kantine & Garage in werbewirksamer Adresslage!
Fläche in m² ab ca. 300 300
Teilbar in m² ab ca. 300
Miete in €/m²/mtl. ab 20,00 20.00
Neu
HIT Alleinauftrag
Innenstadt

NEUER WALL!

Traumbüro mit hochwertiger repräsentativer Ausstattung in Bestlage Neuer Wall!
Fläche in m² ab ca. 561 561
Teilbar in m² ab ca. 561
Miete in €/m²/mtl. ab 27,80 27.80
Provisionsfrei
Neu
Mit Dachterrasse
Mit Elbblick
Innenstadt

„BOA VISTA” - DACHTERRASSE!

Schicke Büros an der Elbe mit Dachterrasse, Kühlung, PKW-Stellplätzen mieten!
Fläche in m² ab ca. 3.789 3789
Teilbar in m² ab ca. 204
Miete in €/m²/mtl. ab 23,00 23.00
Provisionsfrei
Exklusiv nur bei HIT
Östliche Alsterlage (St. Georg)

„HANDELSHOF" - Lange Reihe!

Repräsentatives, hochwertig ausgebautes Büro in Bestlage von St. Georg bei HIT!
Fläche in m² ab ca. 447 447
Teilbar in m² ab ca. 447
Miete in €/m²/mtl. ab 17,50 17.50
Provisionsfrei
Mit Dachterrasse
Mit Elbblick
St. Pauli

„ASTRATURM”-Dachterrasse!

HIT vermietet Traumbüros mit Elbblick & Dachterrasse in Szenelage auf St. Pauli!
Fläche in m² ab ca. 1.335 1335
Teilbar in m² ab ca. 323
Miete in €/m²/mtl. ab 20,00 20.00
Provisionsfrei
Neu
Mit Elbblick
HafenCity

„HAFENCITY GATE”

Traumbüros in der HafenCity! Direkt an der Elbphilharmonie inklusive Elbblick!
Fläche in m² ab ca. 481 481
Teilbar in m² ab ca. 481
Miete in €/m²/mtl. ab 25,50 25.50
Provisionsfrei
Mit Elbblick
HafenCity

„Columbus Haus”

Spektakuläre HafenCitybüros mit Elbblick und Terrasse mieten Sie hier bei HIT!
Fläche in m² ab ca. 1.028 1028
Teilbar in m² ab ca. 514
Miete in €/m²/mtl. ab 30,50 30.50
Provisionsfrei
Mit Terrasse
Mit Elbblick
HafenCity

„Columbus Haus“

Spektakuläre HafenCitybüros mit Elbblick und Terrasse mieten Sie hier bei HIT!
Fläche in m² ab ca. 1.590 1590
Teilbar in m² ab ca. 434
Miete in €/m²/mtl. ab 18,50 18.50
Mit Terrasse
Innenstadt

"BORNHOLDHAUS" - Terrasse!

Erstklassig und exklusiv in bester Adresslage direkt am Neuen Wall mit Terrasse!
Fläche in m² ab ca. 1.046 1046
Teilbar in m² ab ca. 142
Miete in €/m²/mtl. ab 31,00 31.00