040 211 360

„Valentinshof” - Repräsentative Büros in bester Innenstadtlage beim Gänsemarkt mieten! „Valentinshof”, Valentinskamp 24, Caffamacherreihe 8 - 10, 20355 Hamburg Innenstadt (Neustadt)

Innenstadt

UNSERE IMMOBILIENBERATER:INNEN FREUEN SICH AUF IHREN ANRUF!

Abteilung Bürovermietung

040 - 211 360
Kontakt

Objekt Nr. 133_519_2

Schnellübersicht

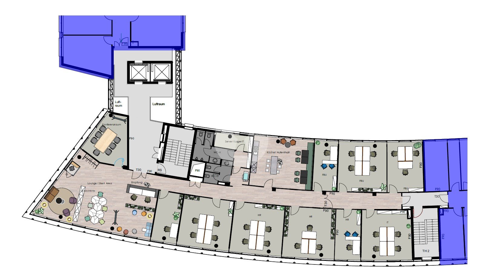
Freie Flächen: ca. 519 m² Teilbar ab: ca. 519 m² Nettokaltmiete ab: 24,50 €/m²/mtl. Bezug ab: nach Vereinbarung

Kurzbeschreibung

In sehr guter, werbewirksamer und sofort auffindbarer Innenstadtlage und nur wenige Gehminuten vom Gänsemarkt und der Binnenalster gelegen, finden Sie den „Valentinshof” mit hauseigener Tiefgarage.

Das modern ausgestattete Büro- und Geschäftshaus überzeugt durch viel Fläche pro Ebene, flexible Teilungsmöglichkeiten und wirtschaftliche Flächenstrukturen.

Über repräsentative Eingangsbereiche mit Personenaufzügen erschließen Sie Ihre neue helle Mietfläche, die über große Fensterfronten verfügt.

Die unmittelbare Nachbarschaft ist perfekt und bietet Ihnen neben einer sehr guten öffentlichen Verkehrsanbindung eine vielseitige Gastronomie, Hotels, Banken, zahlreiche Einkaufsmöglichkeiten und diverse Fitnessstudios.

Gern zeigen wir Ihnen Ihr neues Büro!

AUSSTATTUNGSMERKMALE

  • repräsentativer Eingangsbereich
  • barrierefreie Erschließung
  • Personenaufzüge
  • teilweise Glaswände sowie bodentiefe Fenster für helle Büros
  • elektrischer, außenliegender Sonnenschutz
  • schlüssiges Beleuchtungskonzept
  • teilweise Kühldecken und unterstützende Be- und Entlüftung
  • Hohlraum- und Doppelboden für eine flexible Verkabelung
  • moderne Teeküche
  • Lager- und Archivflächen im Untergeschoss
  • hauseigene Tiefgarage
  • flexible Raumaufteilung nach Mieterabsprache

Provision

Eine Anmietung erfolgt provisionsfrei für den Mieter bei einer Mietvertragslaufzeit von mindestens 5 Jahren.

Mietpreis

Der Mietpreis beträgt ab 24,50 €/m² mtl. + 5,50 €/m² mtl. Nebenkostenvorauszahlung jeweils zzgl. gesetzlicher Mehrwertsteuer und ist abhängig von der Ausstattung und der Lage im Objekt.

ANMERKUNGEN

BILDMATERIAL:
Bei dem hier zur Ansicht gestellten Bildmaterial handelt es sich um beispielhafte Mieterausbauten innerhalb des Gebäudes.

ENERGIEAUSWEIS:
Ab 01. Mai 2014 sind alle Immobilienanbieter gemäß §§ 16, 16 a EnEV (EnEV 2014) verpflichtet, in ihren Immobilienanzeigen und Exposés Angaben zu den energetischen Kennwerten der Immobilie zu veröffentlichen sowie bei Besichtigungen zu überreichen. Dieser Nachweis wurde entsprechend der gesetzlichen Vorgaben von uns bei dem Eigentümer I Vermieter abgefordert. Sofern uns ein Energieausweis bereits vorliegt, können wir Ihnen eine Kopie I das Original als Nachweis aushändigen. Für den Fall, dass uns noch kein Energieausweis vorliegt, bitten wir um Ihr Verständnis, dass dieser nachgereicht werden muss.

Das passende Objekt ist für Sie noch nicht dabei?

Über unser hier präsentiertes Portfolio hinaus führen wir weitere Objekte in der Vermietung, 
die wir jedoch nicht veröffentlichen. Sollten Sie daher Ihr Wunschobjekt noch nicht gefunden
haben, bitten wir Sie, direkt mit uns Kontakt aufzunehmen.
Wir können Ihnen weitere exklusive Angebote unterbreiten.
Auf Ihre Nachricht freuen wir uns!

040 – 211 360
info@hamburgerimmobilienteam.de

Meine Merkliste ( Einträge auf der Merkliste)
Aus Merkliste löschen
Zurück zur Suche

Diese Immobilien können sie auch interessieren.

Hier finden Sie weitere Büroflächenangebote ganz in der Nähe.

Provisionsfrei
HIT Alleinauftrag
Mit Terrasse
Mit Alsterblick
Innenstadt

„ESPLANADEBAU”

Büros mit Terrasse & Alsterblick. Nur 50 m zur Alster. Kurze Laufzeit möglich!
Fläche in m² ab ca. 1.661 1661
Teilbar in m² ab ca. 134
Miete in €/m²/mtl. ab 18,00 18.00
Provisionsfrei
HIT Alleinauftrag
Mit Alsterblick
Östliche Alsterlage (St. Georg)

„KONTORHAUS AN DER ALSTER”

Top Alsterbüros mit Alsterblick, Kantine & Garage in werbewirksamer Adresslage!
Fläche in m² ab ca. 300 300
Teilbar in m² ab ca. 300
Miete in €/m²/mtl. ab 20,00 20.00
Provisionsfrei
Neu
HIT Alleinauftrag
Mit Alsterblick
Östliche Alsterlage (St. Georg)

„ADA47” Alsterbüros!

Das beste Alsterbüro mieten Sie hier. Repräsentativ, modern & PKW-Stellplätze!
Fläche in m² ab ca. 465 465
Teilbar in m² ab ca. 465
Miete in €/m²/mtl. ab 21,50 21.50
Provisionsfrei
Mit Dusche
360° Ausblick
Innenstadt

„EMPORIO TOWER”

Traumbüros - Hoch hinaus mit spektakulärem Panoramablick in Bestlage der City!
Fläche in m² ab ca. 1.081 1081
Teilbar in m² ab ca. 1.081
Miete in €/m²/mtl. ab 27,50 27.50
Neu
HIT Alleinauftrag
Innenstadt

NEUER WALL!

Traumbüro mit hochwertiger repräsentativer Ausstattung in Bestlage Neuer Wall!
Fläche in m² ab ca. 561 561
Teilbar in m² ab ca. 561
Miete in €/m²/mtl. ab 27,80 27.80
Provisionsfrei
Exklusiv nur bei HIT
Östliche Alsterlage (St. Georg)

„HANDELSHOF" - Lange Reihe!

Repräsentatives, hochwertig ausgebautes Büro in Bestlage von St. Georg bei HIT!
Fläche in m² ab ca. 447 447
Teilbar in m² ab ca. 447
Miete in €/m²/mtl. ab 17,50 17.50
Provisionsfrei
Neu
Mit Dachterrasse
Mit Elbblick
Innenstadt

„BOA VISTA” - DACHTERRASSE!

Schicke Büros an der Elbe mit Dachterrasse, Kühlung, PKW-Stellplätzen mieten!
Fläche in m² ab ca. 3.789 3789
Teilbar in m² ab ca. 204
Miete in €/m²/mtl. ab 23,00 23.00
Provisionsfrei
Mit Dachterrasse
Mit Elbblick
St. Pauli

„ASTRATURM”-Dachterrasse!

HIT vermietet Traumbüros mit Elbblick & Dachterrasse in Szenelage auf St. Pauli!
Fläche in m² ab ca. 1.685 1685
Teilbar in m² ab ca. 323
Miete in €/m²/mtl. ab 20,00 20.00
Provisionsfrei
Mit Terrasse
Mit Elbblick
HafenCity

„Columbus Haus“

Spektakuläre HafenCitybüros mit Elbblick und Terrasse mieten Sie hier bei HIT!
Fläche in m² ab ca. 1.590 1590
Teilbar in m² ab ca. 434
Miete in €/m²/mtl. ab 18,50 18.50
Mit Terrasse
Innenstadt

"BORNHOLDHAUS" - Terrasse!

Erstklassig und exklusiv in bester Adresslage direkt am Neuen Wall mit Terrasse!
Fläche in m² ab ca. 1.046 1046
Teilbar in m² ab ca. 142
Miete in €/m²/mtl. ab 31,00 31.00
Provisionsfrei
Innenstadt

Top Büro - Alsternähe!

In nur wenigen Schritten an der Binnenalster! Top Büro mit Panoramafenstern.
Fläche in m² ab ca. 450 450
Teilbar in m² ab ca. 450
Miete in €/m²/mtl. ab 25,00 25.00
Provisionsfrei
Innenstadt
E-Ladeparkplätze

„Ansgarhof”

Neu ausgebaute Büros mit hauseigener Tiefagarage direkt beim Gänsemarkt mieten!
Fläche in m² ab ca. 1.034 1034
Teilbar in m² ab ca. 1.034
Miete in €/m²/mtl. ab 21,00 21.00