040 211 360

„Kontorhaus am Holzdamm” - Helle Büros zwischen Alster und Hauptbahnhof mit hauseigener Tiefgarage jetzt bei HIT mieten! „Kontorhaus am Holzdamm”, Holzdamm 57, 20099 Hamburg St. Georg (Östliche Alsterlage)

Neu
Innenstadt

UNSERE IMMOBILIENBERATER:INNEN FREUEN SICH AUF IHREN ANRUF!

Abteilung Bürovermietung

040 - 211 360
Kontakt

Objekt Nr. 686

Schnellübersicht

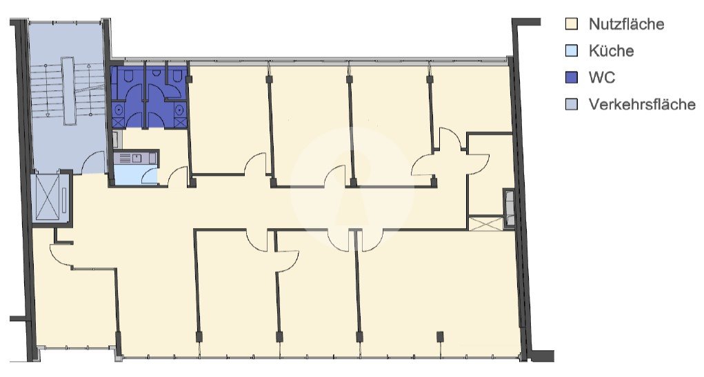
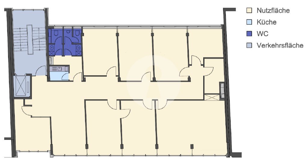
Freie Flächen: ca. 615 m² Teilbar ab: ca. 305 m² Nettokaltmiete ab: 18,00 €/m²/mtl. Bezug ab: nach Vereinbarung

Kurzbeschreibung

Charmantes Bürohaus in Alsternähe und kurze Wege zum Hauptbahnhof!

Dieses repräsentative, achtgeschossige Kontorhaus befindet sich in zentraler Citylage zwischen Alster, „Atlantic-Hotel“ und dem Hauptbahnhof. 

Es wurde 1957 errichtet und 2004 grundlegend saniert. 

Über einen ansprechenden Eingangsbereich mit Personenaufzügen erschließen Sie die hellen Büros mit bodentiefen Panoramafenstern.

Für eine erholsame Mittagspause bietet sich die nahe gelegene Außenalster sowie die urbane beliebte Lange Reihe an, die Sie in nur wenigen Gehminuten erreichen. 

Die Haupteinkaufsstraßen Spitalerstraße und Mönckebergstraße sind ebenso schnell zu Fuß zu erreichen und präsentieren sich mit einer Vielfalt an Einkaufsmöglichkeiten, Banken und Restaurants.

Hier sind Sie mittendrin und trotzdem ruhig gelegen.

Ein weiterer Vorteil kann es für Sie sein, dass Sie hier die Möglichkeit haben, auch eine kürzere Vertragslaufzeit, als die üblichen 5 Jahres fest abzuschließen, z. B. bis Sommer 2029. So müssen Sie sich nicht lange binden und haben eine große Flexibilität für Ihr Unternehmenswachstum.

Haben wir Ihr Interesse an diesen attraktiven Büroflächen geweckt?

Dann rufen Sie uns gern an oder schreiben Sie uns und vereinbaren einen Besichtigungstermin. Gern zeigen wir Ihnen Ihr neues Büro!

AUSSTATTUNGSMERKMALE

  • repräsentativer Eingangsbereich
  • bodentiefe Panoramafenster für lichtdurchflutete Büros
  • elektrischer, außenliegender Sonnenschutz
  • Hohlraumböden inklusive EDV-Verkabelung vom Vormieter
  • Glasfaseranschluss
  • moderne Teeküche und Sanitäreinheiten
  • neuer Bodenbelag
  • schlüssiges Beleuchtungskonzept
  • Lager- und Archivflächen im Untergeschoss
  • Fahrradabstellplätze im Gebäude
  • hauseigene Tiefgarage
  • flexible Raumaufteilung nach Mieterabsprache

Provision

Eine Anmietung erfolgt provisionsfrei für den Mieter bei einer Mietvertragslaufzeit von mindestens 5 Jahren.

Mietpreis

Der Mietpreis beträgt ab 18,00 €/m² mtl. + 5,00 €/m² mtl. Nebenkostenvorauszahlung jeweils zzgl. gesetzlicher Mehrwertsteuer und ist abhängig von der Ausstattung und der Lage im Objekt.

ANMERKUNGEN

BILDMATERIAL:
Bei dem hier zur Ansicht gestellten Bildmaterial handelt es sich um beispielhafte Mieterausbauten innerhalb des Gebäudes.

ENERGIEAUSWEIS:
Ab 01. Mai 2014 sind alle Immobilienanbieter gemäß §§ 16, 16 a EnEV (EnEV 2014) verpflichtet, in ihren Immobilienanzeigen und Exposés Angaben zu den energetischen Kennwerten der Immobilie zu veröffentlichen sowie bei Besichtigungen zu überreichen. Dieser Nachweis wurde entsprechend der gesetzlichen Vorgaben von uns bei dem Eigentümer I Vermieter abgefordert. Sofern uns ein Energieausweis bereits vorliegt, können wir Ihnen eine Kopie I das Original als Nachweis aushändigen. Für den Fall, dass uns noch kein Energieausweis vorliegt, bitten wir um Ihr Verständnis, dass dieser nachgereicht werden muss.

Das passende Objekt ist für Sie noch nicht dabei?

Über unser hier präsentiertes Portfolio hinaus führen wir weitere Objekte in der Vermietung, 
die wir jedoch nicht veröffentlichen. Sollten Sie daher Ihr Wunschobjekt noch nicht gefunden
haben, bitten wir Sie, direkt mit uns Kontakt aufzunehmen.
Wir können Ihnen weitere exklusive Angebote unterbreiten.
Auf Ihre Nachricht freuen wir uns!

040 – 211 360
info@hamburgerimmobilienteam.de

Meine Merkliste ( Einträge auf der Merkliste)
Aus Merkliste löschen
Zurück zur Suche

Diese Immobilien können sie auch interessieren.

Hier finden Sie weitere Büroflächenangebote ganz in der Nähe.

Provisionsfrei
HIT Alleinauftrag
Mit Terrasse
Mit Alsterblick
Innenstadt

„ESPLANADEBAU”

Büros mit Terrasse & Alsterblick. Nur 50 m zur Alster. Kurze Laufzeit möglich!
Fläche in m² ab ca. 6.773 6773
Teilbar in m² ab ca. 1.165
Miete in €/m²/mtl. ab 18,00 18.00
Provisionsfrei
Mit Alsterblick
Östliche Alsterlage (St. Georg)

„ADA47” Alsterbüros!

Das beste Alsterbüro mieten Sie hier. Repräsentativ, modern & PKW-Stellplätze!
Fläche in m² ab ca. 465 465
Teilbar in m² ab ca. 465
Miete in €/m²/mtl. ab 21,50 21.50
Provisionsfrei
Mit Dusche
360° Ausblick
Innenstadt

„EMPORIO TOWER”

Traumbüros - Hoch hinaus mit spektakulärem Panoramablick in Bestlage der City!
Fläche in m² ab ca. 1.081 1081
Teilbar in m² ab ca. 1.081
Miete in €/m²/mtl. ab 27,50 27.50
Provisionsfrei
HIT Alleinauftrag
Mit Alsterblick
Östliche Alsterlage (St. Georg)

„KONTORHAUS ALSTER”

Top Alsterbüros mit Alsterblick, Kantine & Garage in werbewirksamer Adresslage!
Fläche in m² ab ca. 300 300
Teilbar in m² ab ca. 300
Miete in €/m²/mtl. ab 20,00 20.00
Neu
HIT Alleinauftrag
Innenstadt

NEUER WALL!

Traumbüro mit hochwertiger repräsentativer Ausstattung in Bestlage Neuer Wall!
Fläche in m² ab ca. 561 561
Teilbar in m² ab ca. 561
Miete in €/m²/mtl. ab 27,80 27.80
Provisionsfrei
Neu
HIT Alleinauftrag
City Süd (Hammerbrook)

„DOCK45”

Sofort beziehbar! Hochwertig ausgebautes City Süd Büro mit PKW-Stellplätzen!
Fläche in m² ab ca. 405 405
Teilbar in m² ab ca. 405
Miete in €/m²/mtl. ab 15,00 15.00
Provisionsfrei
Exklusiv nur bei HIT
Östliche Alsterlage (St. Georg)

„HANDELSHOF" - Lange Reihe!

Repräsentatives, hochwertig ausgebautes Büro in Bestlage von St. Georg bei HIT!
Fläche in m² ab ca. 447 447
Teilbar in m² ab ca. 447
Miete in €/m²/mtl. ab 17,50 17.50
Provisionsfrei
Neu
Mit Dachterrasse
Mit Elbblick
Innenstadt

„BOA VISTA” - DACHTERRASSE!

Schicke Büros an der Elbe mit Dachterrasse, Kühlung, PKW-Stellplätzen mieten!
Fläche in m² ab ca. 3.789 3789
Teilbar in m² ab ca. 204
Miete in €/m²/mtl. ab 23,00 23.00
Provisionsfrei
Neu
Mit Elbblick
HafenCity

"QUAI54"

Repräsentative hochwertig ausgebaute Büros mit Kühlung im Herzen der HafenCity!
Fläche in m² ab ca. 560 560
Teilbar in m² ab ca. 560
Miete in €/m²/mtl. ab 28,50 28.50
Provisionsfrei
Neu
Mit Elbblick
HafenCity

„HAFENCITY GATE”

Traumbüros in der HafenCity! Direkt an der Elbphilharmonie inklusive Elbblick!
Fläche in m² ab ca. 481 481
Teilbar in m² ab ca. 481
Miete in €/m²/mtl. ab 25,50 25.50
Provisionsfrei
Mit Elbblick
HafenCity

„Columbus Haus”

Spektakuläre HafenCitybüros mit Elbblick und Terrasse mieten Sie hier bei HIT!
Fläche in m² ab ca. 1.028 1028
Teilbar in m² ab ca. 514
Miete in €/m²/mtl. ab 30,50 30.50
Provisionsfrei
Mit Terrasse
Mit Elbblick
HafenCity

„Columbus Haus“

Spektakuläre HafenCitybüros mit Elbblick und Terrasse mieten Sie hier bei HIT!
Fläche in m² ab ca. 1.590 1590
Teilbar in m² ab ca. 434
Miete in €/m²/mtl. ab 18,50 18.50