040 211 360

Repräsentative neue Büros nur wenige Schritte von der Binnenalster mit PKW-Stellplätzen und Balkon jetzt bei HIT provisionsfrei mieten! Alstertor 9, 20095 Hamburg Innenstadt (Altstadt)

Innenstadt

UNSERE IMMOBILIENBERATER:INNEN FREUEN SICH AUF IHREN ANRUF!

Abteilung Bürovermietung

040 - 211 360
Kontakt

Objekt Nr. 60_450_6

Schnellübersicht

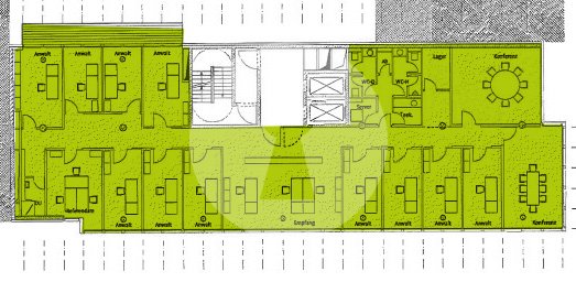
Freie Flächen: ca. 450 m² Teilbar ab: ca. 450 m² Nettokaltmiete ab: 25,00 €/m²/mtl. Bezug ab: nach Vereinbarung

Kurzbeschreibung

Sie sind auf der Suche nach einem repräsentativen, modernen Büro in Alsterlage? Dann schauen Sie hier doch einmal mit uns rein!

In perfekter Innenstadtlage vis-à-vis der Binnenalster und mit allen Einkaufsmöglichkeiten direkt vor der Tür, präsentiert sich dieses imposante und modern ausgestattete Büro- und Geschäftshaus mit einem hohen Wiedererkennungswert.

Hochwertige Materialien, bodentiefe Panoramafenster, wirtschaftliche Grundrisse und ein seitlicher Alsterblick sind nur einige Highlights dieses Objektes, welches 2009 errichtet wurde.

Ihre neue schöne Bürofläche mit einem Balkon zum Innenhof erschließen Sie über einen repräsentativen Eingangsbereich.

Bequemes Parken bietet Ihnen die hauseigene Tiefgarage.

Wann möchten Sie mit uns besichtigen? Auf Ihren Anruf freuen wir uns!

AUSSTATTUNGSMERKMALE

  • Balkon
  • barrierefreie Erschließung
  • Personenaufzug
  • bodentiefe Panoramafenster für lichtdurchflutete Büros
  • elektrischer, außenliegender Sonnenschutz
  • teilweise Glaselemente wie Glaswände, Glasseitenfelder
  • Kühlung für ein angenehmes Raumklima auch an heißen Sommertagen
  • unterstützende Be- und Entlüftung
  • schlüssiges Beleuchtungskonzept
  • moderne Teeküche
  • Hohlraumböden inklusive EDV-Verkabelung vom Vormieter
  • Glasfaseranschluss
  • abgehängte, glatte Decken
  • hauseigene Tiefgarage
  • Fahrradabstellplätze im Gebäude
  • flexible Raumaufteilung nach Mieterabsprache

Provision

Eine Anmietung erfolgt provisionsfrei für den Mieter bei einer Mietvertragslaufzeit von mindestens 5 Jahren.

Mietpreis

Der Mietpreis beträgt ab 25,00 €/m² mtl. + 5,50 €/m² mtl. Nebenkostenvorauszahlung jeweils zzgl. gesetzlicher Mehrwertsteuer und ist abhängig von der Ausstattung und der Lage im Objekt.

ANMERKUNGEN

BILDMATERIAL:
Bei dem hier zur Ansicht gestellten Bildmaterial handelt es sich um beispielhafte Mieterausbauten innerhalb des Gebäudes.

ENERGIEAUSWEIS:
Ab 01. Mai 2014 sind alle Immobilienanbieter gemäß §§ 16, 16 a EnEV (EnEV 2014) verpflichtet, in ihren Immobilienanzeigen und Exposés Angaben zu den energetischen Kennwerten der Immobilie zu veröffentlichen sowie bei Besichtigungen zu überreichen. Dieser Nachweis wurde entsprechend der gesetzlichen Vorgaben von uns bei dem Eigentümer I Vermieter abgefordert. Sofern uns ein Energieausweis bereits vorliegt, können wir Ihnen eine Kopie I das Original als Nachweis aushändigen. Für den Fall, dass uns noch kein Energieausweis vorliegt, bitten wir um Ihr Verständnis, dass dieser nachgereicht werden muss.

Das passende Objekt ist für Sie noch nicht dabei?

Über unser hier präsentiertes Portfolio hinaus führen wir weitere Objekte in der Vermietung, 
die wir jedoch nicht veröffentlichen. Sollten Sie daher Ihr Wunschobjekt noch nicht gefunden
haben, bitten wir Sie, direkt mit uns Kontakt aufzunehmen.
Wir können Ihnen weitere exklusive Angebote unterbreiten.
Auf Ihre Nachricht freuen wir uns!

040 – 211 360
info@hamburgerimmobilienteam.de

Meine Merkliste ( Einträge auf der Merkliste)
Aus Merkliste löschen
Zurück zur Suche

Diese Immobilien können sie auch interessieren.

Hier finden Sie weitere Büroflächenangebote ganz in der Nähe.

Provisionsfrei
HIT Alleinauftrag
Mit Terrasse
Mit Alsterblick
Innenstadt

„ESPLANADEBAU”

Büros mit Terrasse & Alsterblick. Nur 50 m zur Alster. Kurze Laufzeit möglich!
Fläche in m² ab ca. 1.661 1661
Teilbar in m² ab ca. 134
Miete in €/m²/mtl. ab 18,00 18.00
Provisionsfrei
HIT Alleinauftrag
Mit Alsterblick
Östliche Alsterlage (St. Georg)

„KONTORHAUS AN DER ALSTER”

Top Alsterbüros mit Alsterblick, Kantine & Garage in werbewirksamer Adresslage!
Fläche in m² ab ca. 300 300
Teilbar in m² ab ca. 300
Miete in €/m²/mtl. ab 20,00 20.00
Provisionsfrei
Neu
HIT Alleinauftrag
Mit Alsterblick
Östliche Alsterlage (St. Georg)

„ADA47” Alsterbüros!

Das beste Alsterbüro mieten Sie hier. Repräsentativ, modern & PKW-Stellplätze!
Fläche in m² ab ca. 465 465
Teilbar in m² ab ca. 465
Miete in €/m²/mtl. ab 21,50 21.50
Provisionsfrei
Mit Dusche
360° Ausblick
Innenstadt

„EMPORIO TOWER”

Traumbüros - Hoch hinaus mit spektakulärem Panoramablick in Bestlage der City!
Fläche in m² ab ca. 1.081 1081
Teilbar in m² ab ca. 1.081
Miete in €/m²/mtl. ab 27,50 27.50
Neu
HIT Alleinauftrag
Innenstadt

NEUER WALL!

Traumbüro mit hochwertiger repräsentativer Ausstattung in Bestlage Neuer Wall!
Fläche in m² ab ca. 561 561
Teilbar in m² ab ca. 561
Miete in €/m²/mtl. ab 27,80 27.80
Provisionsfrei
Exklusiv nur bei HIT
Östliche Alsterlage (St. Georg)

„HANDELSHOF" - Lange Reihe!

Repräsentatives, hochwertig ausgebautes Büro in Bestlage von St. Georg bei HIT!
Fläche in m² ab ca. 447 447
Teilbar in m² ab ca. 447
Miete in €/m²/mtl. ab 17,50 17.50
Provisionsfrei
Neu
Mit Dachterrasse
Mit Elbblick
Innenstadt

„BOA VISTA” - DACHTERRASSE!

Schicke Büros an der Elbe mit Dachterrasse, Kühlung, PKW-Stellplätzen mieten!
Fläche in m² ab ca. 3.789 3789
Teilbar in m² ab ca. 204
Miete in €/m²/mtl. ab 23,00 23.00
Provisionsfrei
Mit Terrasse
Mit Elbblick
HafenCity

„Columbus Haus“

Spektakuläre HafenCitybüros mit Elbblick und Terrasse mieten Sie hier bei HIT!
Fläche in m² ab ca. 1.590 1590
Teilbar in m² ab ca. 434
Miete in €/m²/mtl. ab 18,50 18.50
Mit Terrasse
Innenstadt

"BORNHOLDHAUS" - Terrasse!

Erstklassig und exklusiv in bester Adresslage direkt am Neuen Wall mit Terrasse!
Fläche in m² ab ca. 1.046 1046
Teilbar in m² ab ca. 142
Miete in €/m²/mtl. ab 31,00 31.00
Provisionsfrei
Innenstadt

Top Büro - Alsternähe!

In nur wenigen Schritten an der Binnenalster! Top Büro mit Panoramafenstern.
Fläche in m² ab ca. 450 450
Teilbar in m² ab ca. 450
Miete in €/m²/mtl. ab 25,00 25.00
Provisionsfrei
Innenstadt
E-Ladeparkplätze

„Ansgarhof”

Neu ausgebaute Büros mit hauseigener Tiefagarage direkt beim Gänsemarkt mieten!
Fläche in m² ab ca. 1.034 1034
Teilbar in m² ab ca. 1.034
Miete in €/m²/mtl. ab 21,00 21.00
Provisionsfrei
Neu
Innenstadt

"NEW41"

Schicke Büros direkt am Neuen Wall mit Kühlung und Alsterfleetblick hier mieten!
Fläche in m² ab ca. 289 289
Teilbar in m² ab ca. 289
Miete in €/m²/mtl. ab 32,50 32.50