040 211 360

„BEISSER HAUS” - Schicker Bürohausneubau im Herzen der Stadt mit gekühlten Büros - Spitalerstraße! „BEISSER HAUS”, Spitalerstraße 1, 20095 Hamburg Innenstadt (Altstadt)

Neu
Mit Balkon
Innenstadt

UNSERE IMMOBILIENBERATER:INNEN FREUEN SICH AUF IHREN ANRUF!

Abteilung Bürovermietung

040 - 211 360
Kontakt

Objekt Nr. 788_465_3

Schnellübersicht

Freie Flächen: ca. 465 m² Teilbar ab: ca. 465 m² Nettokaltmiete ab: 26,00 €/m²/mtl. Bezug ab: nach Vereinbarung

Kurzbeschreibung

HERZLICH WILLKOMMEN im “BEISSER-HAUS”! 

Repräsentative Neubaubüros mit Kühlung und Südbalkon! Zentraler geht´s nicht!

In bester zentraler Innenstadtlage direkt gegenüber des Hauptbahnhofes präsentiert sich dieses 1913 als “Lloyd-Hotel” errichtete Gründerzeithaus. 

Nach einer hochwertigen Sanierung und Neubauerweiterung erstrahlt die repräsentative Immobilie seit 2026 wieder im neuen Glanz. 

Die Fassade wurde auf die Grundstruktur zurück gebaut und in Anlehnung an die Erstellungszeit mit langlebigen Materialien wie z. B. Naturstein neu errichtet, inklusive einer neuen Dachgestaltung. 

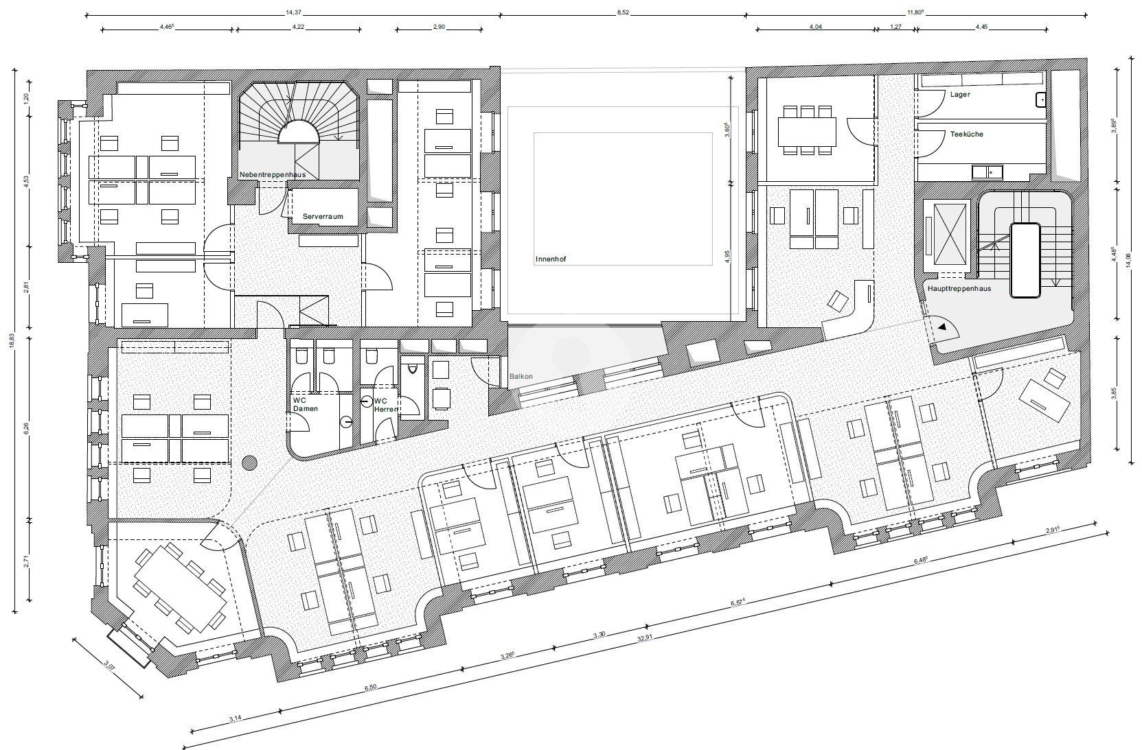
Über eine repräsentative, barrierefreie Lobby mit Natursteinbelag erschließen Sie die helle Büroetage, die Ihnen eine charmante lichte Raumhöhe von ca. 3,10 m bietet.

Teilweise verfügen die Büros über bodentiefe Panoramafenster mit schönen Ausblicken und einen großen Südbalkon in den ruhigen grünen Innenhof.

An heißen Sommertagen behalten Sie mit Ihren Kollegen einen kühlen Kopf! Alle Büros sind mit einer Kühlung ausgestattet, die raumweise gesteuert wird.

Auch der Grundriss präsentiert sich hoch flexibel. Ganz gleich, ob Einzel- oder Doppelbüro, Team- oder Gruppenbüros oder der kommunikative open Space. Alles ist möglich und wird entsprechend Ihrer Wünsche schlüsselfertig hergerichtet.

Die Fahrradfahrer stellen Ihre Fahrräder gern im dafür vorgesehenen Untergeschoss ab. Sie gelangen ganz bequem über den Lastenaufzug dorthin.

Auch finden Sie im Untergeschoss ein Behinderten-WC und Duschen für die Sportler unter Ihnen.

Haben wir Ihr Interesse an diesen repräsentativen Neubaubüros in zentraler Innenstadtlage geweckt?

Gern zeigen wir Ihnen alles in einer gemeinsamen Besichtigung vor Ort . Rufen Sie uns einfach an! Wir freuen uns auf Sie.

AUSSTATTUNGSMERKMALE

  • barrierefreie Erschließung
  • große Fensterfronten für helle Büros
  • Kühlung in den Büros - raumweise steuerbar
  • teilweise Glaselemente wie Glaswände, Glasseitenfelder
  • charmante lichte Raumhöhen von ca. 3,10 m - 6 m in der obersten Etage
  • hochwertige Teeküchen und Sanitäreinheiten
  • Duschen mit Umkleiden für alle Mieter des Hauses im Untergeschoss
  • Glasfaseranschluss im Gebäude
  • Video- und Gegensprechanlage
  • Lastenaufzug
  • Fahrradabstellplätze im Gebäude
  • flexible Raumaufteilung nach Mieterabsprache

Provision

Eine Anmietung erfolgt provisionsfrei für den Mieter bei einer Mietvertragslaufzeit von mindestens 5 Jahren.

Mietpreis

Der Mietpreis beträgt ab 26,00 €/m² mtl. + 4,50 €/m² mtl. Nebenkostenvorauszahlung jeweils zzgl. gesetzlicher Mehrwertsteuer und ist abhängig von der Ausstattung und der Lage im Objekt.

ANMERKUNGEN

BILDMATERIAL:
Bei dem hier zur Ansicht gestellten Bildmaterial handelt es sich um beispielhafte Mieterausbauten innerhalb des Gebäudes.

ENERGIEAUSWEIS:
Ab 01. Mai 2014 sind alle Immobilienanbieter gemäß §§ 16, 16 a EnEV (EnEV 2014) verpflichtet, in ihren Immobilienanzeigen und Exposés Angaben zu den energetischen Kennwerten der Immobilie zu veröffentlichen sowie bei Besichtigungen zu überreichen. Dieser Nachweis wurde entsprechend der gesetzlichen Vorgaben von uns bei dem Eigentümer I Vermieter abgefordert. Sofern uns ein Energieausweis bereits vorliegt, können wir Ihnen eine Kopie I das Original als Nachweis aushändigen. Für den Fall, dass uns noch kein Energieausweis vorliegt, bitten wir um Ihr Verständnis, dass dieser nachgereicht werden muss.

Das passende Objekt ist für Sie noch nicht dabei?

Über unser hier präsentiertes Portfolio hinaus führen wir weitere Objekte in der Vermietung, 
die wir jedoch nicht veröffentlichen. Sollten Sie daher Ihr Wunschobjekt noch nicht gefunden
haben, bitten wir Sie, direkt mit uns Kontakt aufzunehmen.
Wir können Ihnen weitere exklusive Angebote unterbreiten.
Auf Ihre Nachricht freuen wir uns!

040 – 211 360
info@hamburgerimmobilienteam.de

Meine Merkliste ( Einträge auf der Merkliste)
Aus Merkliste löschen
Zurück zur Suche

Diese Immobilien können sie auch interessieren.

Hier finden Sie weitere Büroflächenangebote ganz in der Nähe.

Provisionsfrei
HIT Alleinauftrag
Östliche Alsterlage (St. Georg)

„HAMBURGER WELLE”

Perfekte Gelegenheit! Repräsentativ, helle Büros, günstige Miete ab € 13,77/m²!
Fläche in m² ab ca. 1.140 1140
Teilbar in m² ab ca. 1.140
Miete in €/m²/mtl. ab 13,77 13.77
Provisionsfrei
Neu
Mit Balkon
Innenstadt

„BEISSER HAUS”

Mittendrin - Spitalerstraße - Schicke Neubaubüros, mit Kühlung und Terrasse!
Fläche in m² ab ca. 2.732 2732
Teilbar in m² ab ca. 338
Miete in €/m²/mtl. ab 24,00 24.00
Provisionsfrei
Mit Dachterrasse
Mit Alsterblick
Innenstadt

ALSTERBLICK inklusive!

Einzigartige wunderschöne Büros in bester Adresslage direkt an der Binnenalster!
Fläche in m² ab ca. 2.583 2583
Teilbar in m² ab ca. 459
Miete in €/m²/mtl. auf Anfrage
Provisionsfrei
Neu
Mit Elbblick
Mit Dusche
Altona I Ottensen I Hafenrand

„Elbspeicher“

Erstklassige, gekühlte Büros an der Elbe bei HIT mieten. Mit tollem Elbblick!
Fläche in m² ab ca. 1.334 1334
Teilbar in m² ab ca. 1.334
Miete in €/m²/mtl. ab 18,00 18.00
Provisionsfrei
Neu
E-Ladeparkplätze
Östliche Alsterlage (St. Georg)

Repräsentative Büros!

Zentrale citynahe Lage! Sehr guter ÖPNV, Kühlung, Tiefgarage, E-Ladeplätze!
Fläche in m² ab ca. 4.665 4665
Teilbar in m² ab ca. 489
Miete in €/m²/mtl. ab 17,10 17.10
Provisionsfrei
Mit Dachterrasse
360° Ausblick
HafenCity

„WATERMARK”

Gekühlte Büros mit 360° Ausblick auf Hamburg & mega Dachterrasse hier bei HIT!
Fläche in m² ab ca. 766 766
Teilbar in m² ab ca. 766
Miete in €/m²/mtl. ab 28,00 28.00
Provisionsfrei
Neu
Mit Dachterrasse
Altona I Ottensen I Hafenrand

„DOCKLAND” - TERRASSE!

Traumbüro an der Elbe mit Dachterrasse, Kühlung & Tiefgarage bei HIT mieten!
Fläche in m² ab ca. 1.228 1228
Teilbar in m² ab ca. 1.228
Miete in €/m²/mtl. ab 25,00 25.00
Provisionsfrei
Mit Elbblick
Mit Dachterrasse
Altona I Ottensen I Hafenrand

„Holzhafen Terrassen”

Mieten Sie doch dieses Elbbüro mit Dachterrasse & Elbblick provisionsfrei hier!
Fläche in m² ab ca. 900 900
Teilbar in m² ab ca. 900
Miete in €/m²/mtl. ab 19,00 19.00
Provisionsfrei
Neu
HafenCity

„COMMERCIAL CENTER”

Schicke Büros in der HafenCity mit Kühlung & Tiefgarage! Auch kurze Laufzeiten!
Fläche in m² ab ca. 756 756
Teilbar in m² ab ca. 370
Miete in €/m²/mtl. ab 25,00 25.00
Provisionsfrei
Neu
Mit Dachterrasse
Innenstadt

„OPERA OFFICES NEO”

Schöne Büros zwischen Binnenalster und Gänsemarkt mit DACHTERRASSE und Garage!
Fläche in m² ab ca. 4.125 4125
Teilbar in m² ab ca. 268
Miete in €/m²/mtl. ab 25,50 25.50
Provisionsfrei
Mit Terrasse
E-Ladeparkplätze
City Süd (Hammerbrook)

„Lindley Carrée”

Neue gekühlte Büros in schöner Wasserlage mit modernem Neuausbau hier mieten!
Fläche in m² ab ca. 6.499 6499
Teilbar in m² ab ca. 322
Miete in €/m²/mtl. ab 16,50 16.50
Provisionsfrei
Mit Balkon
Innenstadt

„STADTHÖFE HAMBURG”

Top Büros beim Neuen Wall mieten Sie im neuen Hotspot der City mit Kühlung!
Fläche in m² ab ca. 768 768
Teilbar in m² ab ca. 308
Miete in €/m²/mtl. ab 28,00 28.00