040 211 360

„HOLZHAFEN WEST” - Repräsentative neue Büros mit Terrasse direkt an der Elbe jetzt bei HIT mieten! „HOLZHAFEN WEST”, Große Elbstraße 59 - 63, 22767 Hamburg Hafenrand

Neu
Mit Elbblick
Mit Terrasse
Altona I Ottensen I Hafenrand

UNSERE IMMOBILIENBERATER:INNEN FREUEN SICH AUF IHREN ANRUF!

Abteilung Bürovermietung

040 - 211 360
Kontakt

Objekt Nr. 1

Schnellübersicht

Freie Flächen: ca. 2.098 m² Teilbar ab: ca. 253 m² Nettokaltmiete ab: 24,00 €/m²/mtl. Bezug ab: nach Vereinbarung

Kurzbeschreibung

Mieten Sie hier Ihr neues Elbbüro im „HOLZHAFEN WEST”!

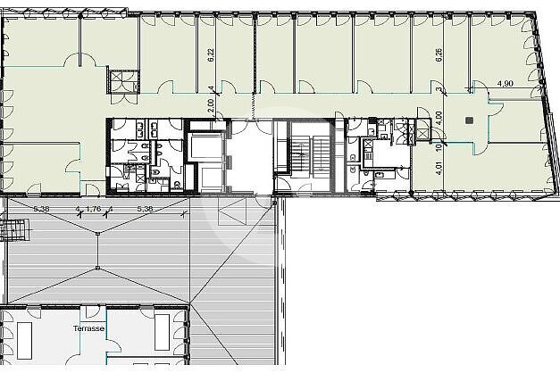
Der „Holzhafen West" ist ein imposantes Bürohaus in der ersten Reihe des Hamburger Elbufers an Hamburgs ältestem erhaltenen Hafenbecken.

Neben einem Maximum an Blickbeziehungen zur Elbe bietet das Bürogebäude eine hochwertige Ausstattung und flexible, effiziente Grundrisse für alle Büroformen. Ganz gleich, ob das Einzelbüro für konzentriertes Arbeiten, Doppel- oder Teambüros und auch open Space Flächen für kommunikatives Arbeiten. Alles ist idealerweise möglich und wird in Mieterabsprache hergerichtet.

Über einen repräsentativen, barrierefreien Eingangsbereich mit Personenaufzügen erschließen Sie diese einzigartigen gekühlten Büroflächen, die Ihnen auch an heißen Sommertagen eine sehr angenehme Arbeitsatmosphäre bieten.

Die Ausblicke auf die Elbe sind fantastisch und ein großer Mehrwert ist die schöne Terrasse mit direktem Wasserbezug.

Bequemes Parken bietet Ihnen die hauseigene Tiefgarage auf komfortablen Einzelparkern für alle Autogrößen.

Was wollen Sie mehr? Rufen Sie uns einfach an. Gern zeigen wir Ihnen diese tollen Büros im „HOLZHAFEN WEST”!

AUSSTATTUNGSMERKMALE

  • Terrasse
  • repräsentativer Eingangsbereich
  • thermische Bauteilaktivierung mit Lüftungsfunktion
  • Kühlung für ein angenehmes Raumklima auch an heißen Sommertagen
  • bodentiefe Panoramafenster für lichtdurchflutete Büros
  • Sonnenschutzverglasung und Lamellenblendschutz
  • schlüssiges Beleuchtungskonzept
  • abgehängte, glatte Decken
  • Hohlraum- und Doppelboden für eine flexible Verkabelung
  • Bodentanks inklusive EDV-Verkabelung vom Vormieter
  • hauseigene Tiefgarage
  • flexible Raumaufteilung nach Mieterabsprache

Provision

Eine Anmietung erfolgt provisionsfrei für den Mieter bei einer Mietvertragslaufzeit von mindestens 5 Jahren.

Mietpreis

Der Mietpreis beträgt ab 24,00 €/m² mtl. + 5,60 €/m² mtl. Nebenkostenvorauszahlung jeweils zzgl. gesetzlicher Mehrwertsteuer und ist abhängig von der Ausstattung und der Lage im Objekt.

ANMERKUNGEN

BILDMATERIAL:
Bei dem hier zur Ansicht gestellten Bildmaterial handelt es sich um beispielhafte Mieterausbauten innerhalb des Gebäudes.

ENERGIEAUSWEIS:
Ab 01. Mai 2014 sind alle Immobilienanbieter gemäß §§ 16, 16 a EnEV (EnEV 2014) verpflichtet, in ihren Immobilienanzeigen und Exposés Angaben zu den energetischen Kennwerten der Immobilie zu veröffentlichen sowie bei Besichtigungen zu überreichen. Dieser Nachweis wurde entsprechend der gesetzlichen Vorgaben von uns bei dem Eigentümer I Vermieter abgefordert. Sofern uns ein Energieausweis bereits vorliegt, können wir Ihnen eine Kopie I das Original als Nachweis aushändigen. Für den Fall, dass uns noch kein Energieausweis vorliegt, bitten wir um Ihr Verständnis, dass dieser nachgereicht werden muss.

Das passende Objekt ist für Sie noch nicht dabei?

Über unser hier präsentiertes Portfolio hinaus führen wir weitere Objekte in der Vermietung, 
die wir jedoch nicht veröffentlichen. Sollten Sie daher Ihr Wunschobjekt noch nicht gefunden
haben, bitten wir Sie, direkt mit uns Kontakt aufzunehmen.
Wir können Ihnen weitere exklusive Angebote unterbreiten.
Auf Ihre Nachricht freuen wir uns!

040 – 211 360
info@hamburgerimmobilienteam.de

Meine Merkliste ( Einträge auf der Merkliste)
Aus Merkliste löschen
Zurück zur Suche

Diese Immobilien können sie auch interessieren.

Hier finden Sie weitere Büroflächenangebote ganz in der Nähe.

Provisionsfrei
HIT Alleinauftrag
Östliche Alsterlage (St. Georg)

„HAMBURGER WELLE”

Perfekte Gelegenheit! Repräsentativ, helle Büros, günstige Miete ab € 13,77/m²!
Fläche in m² ab ca. 1.140 1140
Teilbar in m² ab ca. 1.140
Miete in €/m²/mtl. ab 13,77 13.77
Provisionsfrei
Mit Dachterrasse
Mit Alsterblick
Innenstadt

ALSTERBLICK inklusive!

Einzigartige wunderschöne Büros in bester Adresslage direkt an der Binnenalster!
Fläche in m² ab ca. 2.583 2583
Teilbar in m² ab ca. 459
Miete in €/m²/mtl. auf Anfrage
Provisionsfrei
Neu
Mit Elbblick
Mit Dusche
Altona I Ottensen I Hafenrand

„Elbspeicher“

Erstklassige, gekühlte Büros an der Elbe bei HIT mieten. Mit tollem Elbblick!
Fläche in m² ab ca. 1.334 1334
Teilbar in m² ab ca. 1.334
Miete in €/m²/mtl. ab 21,33 21.33
Provisionsfrei
Mit Dachterrasse
360° Ausblick
HafenCity

„WATERMARK”

Gekühlte Büros mit 360° Ausblick auf Hamburg & mega Dachterrasse hier bei HIT!
Fläche in m² ab ca. 766 766
Teilbar in m² ab ca. 766
Miete in €/m²/mtl. ab 28,00 28.00
Neu
Mit Elbblick
Altona I Ottensen I Hafenrand

„Holzhafen Ost” - Elbblick!

Wunderschönes Büro direkt an der Elbe mit unverbaubarem Elbblick hier mieten!
Fläche in m² ab ca. 646 646
Teilbar in m² ab ca. 646
Miete in €/m²/mtl. ab 20,90 20.90
Provisionsfrei
Neu
Mit Dachterrasse
Altona I Ottensen I Hafenrand

„DOCKLAND” - TERRASSE!

Traumbüro an der Elbe mit Dachterrasse, Kühlung & Tiefgarage bei HIT mieten!
Fläche in m² ab ca. 1.228 1228
Teilbar in m² ab ca. 1.228
Miete in €/m²/mtl. ab 25,00 25.00
Provisionsfrei
Mit Elbblick
Mit Dachterrasse
Altona I Ottensen I Hafenrand

„Holzhafen Terrassen”

Mieten Sie doch dieses Elbbüro mit Dachterrasse & Elbblick provisionsfrei hier!
Fläche in m² ab ca. 900 900
Teilbar in m² ab ca. 900
Miete in €/m²/mtl. ab 19,00 19.00
Provisionsfrei
Neu
HafenCity

„COMMERCIAL CENTER”

Schicke Büros in der HafenCity mit Kühlung & Tiefgarage! Auch kurze Laufzeiten!
Fläche in m² ab ca. 756 756
Teilbar in m² ab ca. 370
Miete in €/m²/mtl. ab 25,00 25.00
Provisionsfrei
Mit Dachterrasse
Mit Dusche
Innenstadt

„Holstenhof”

Schicke Innenstadtbüros im eleganten Green Building mit Dachterrasse & Dusche!
Fläche in m² ab ca. 1.599 1599
Teilbar in m² ab ca. 1.599
Miete in €/m²/mtl. ab 28,50 28.50
Provisionsfrei
Neu
Mit Dachterrasse
Innenstadt

„OPERA OFFICES NEO”

Schöne Büros zwischen Binnenalster und Gänsemarkt mit DACHTERRASSE und Garage!
Fläche in m² ab ca. 4.125 4125
Teilbar in m² ab ca. 268
Miete in €/m²/mtl. ab 25,50 25.50
Provisionsfrei
Neu
E-Ladeparkplätze
City Süd (Hammerbrook)

„Lindley Carrée”

Neue gekühlte Büros in schöner Wasserlage mit modernem Neuausbau hier mieten!
Fläche in m² ab ca. 8.080 8080
Teilbar in m² ab ca. 322
Miete in €/m²/mtl. ab 16,50 16.50
Provisionsfrei
Neu
Mit Elbblick
Mit Alsterblick
Innenstadt

„TOWER AM MICHEL“ - 12. OG!

Traumhafter 360° Ausblick auf Hamburg! Gekühlte moderne Büros. Faire Miete!
Fläche in m² ab ca. 1.308 1308
Teilbar in m² ab ca. 1.308
Miete in €/m²/mtl. ab 18,35 18.35