040 211 360

„WA77” - Ihr neues modernes Büro im Zentrum von Wandsbek mit hauseigenen PKW-Stellplätzen.! „WA77”, Wandsbeker Allee 77, 22041 Hamburg Wandsbek

Wandsbek

UNSERE IMMOBILIENBERATER:INNEN FREUEN SICH AUF IHREN ANRUF!

Abteilung Bürovermietung

040 - 211 360
Kontakt

Objekt Nr. 1000

Schnellübersicht

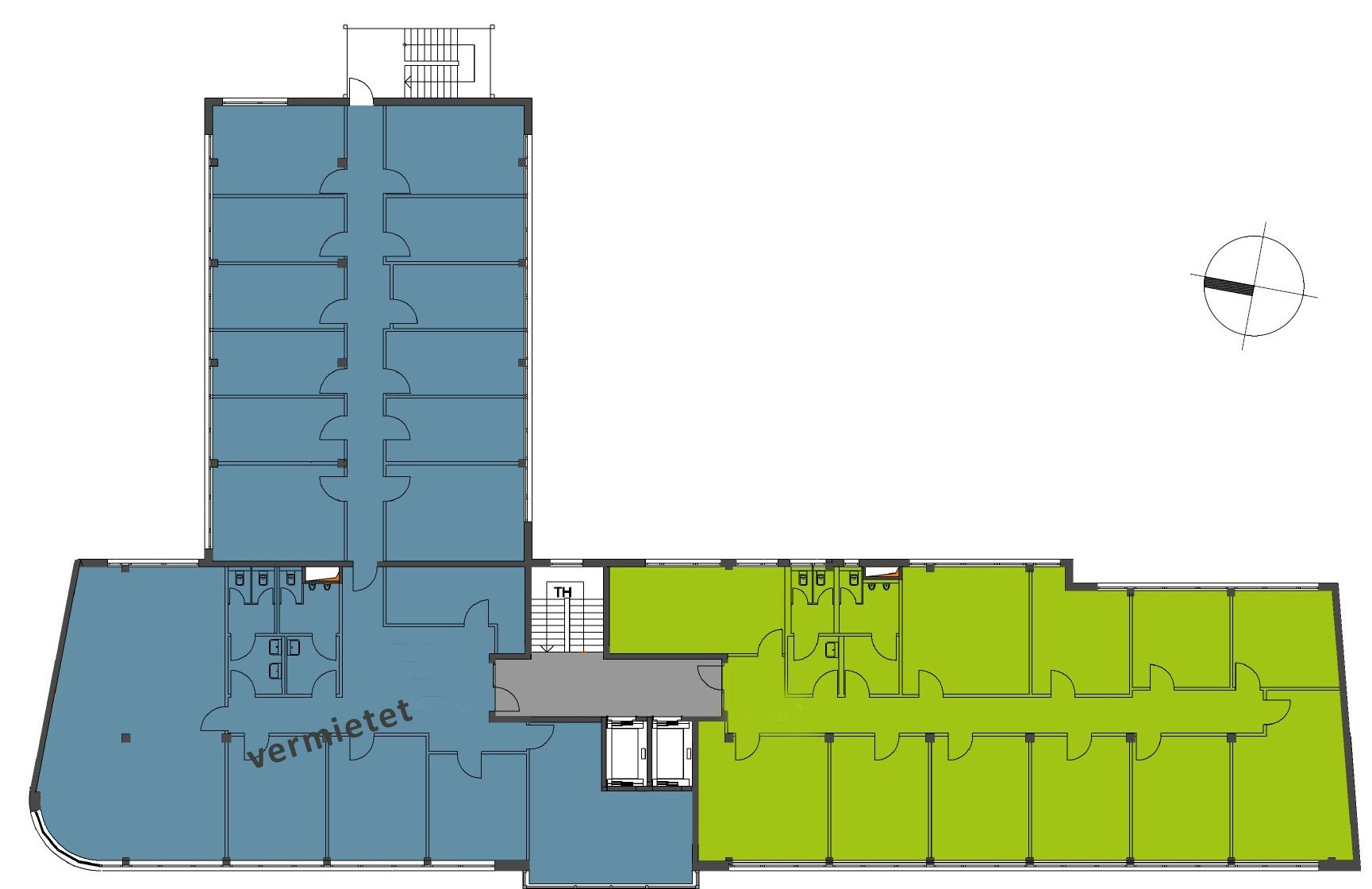
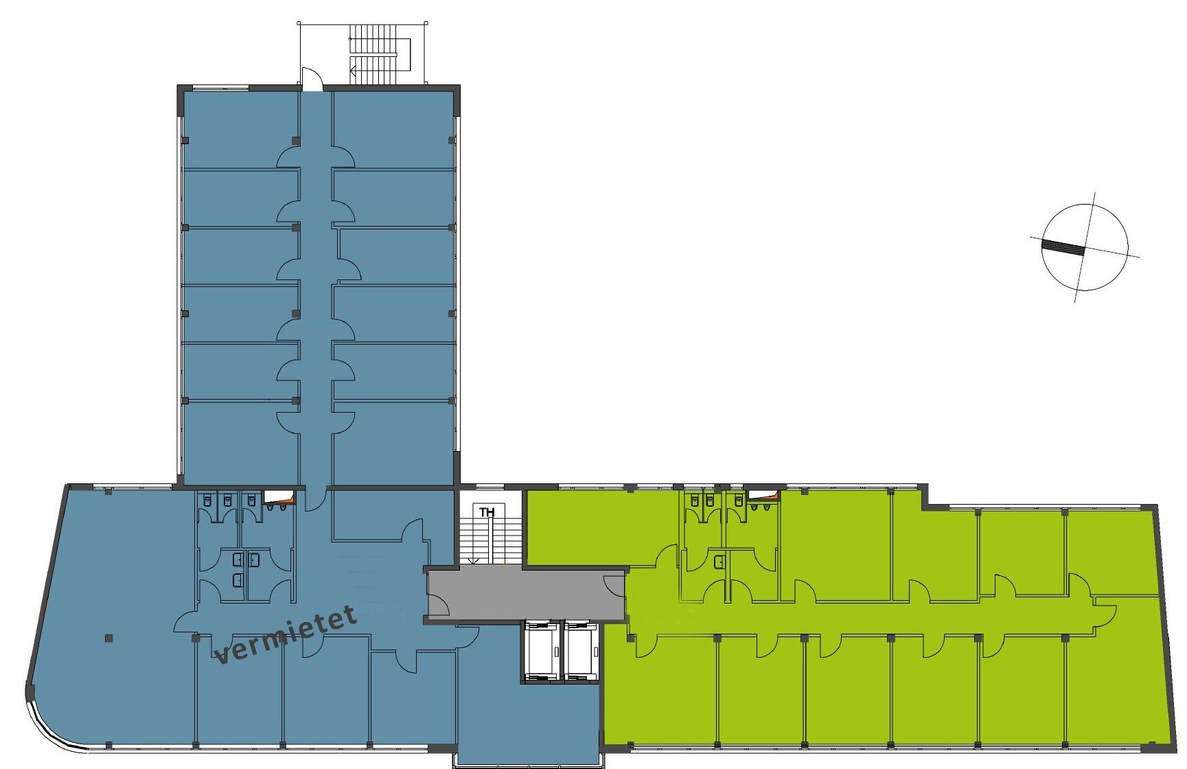
Freie Flächen: ca. 1.707 m² Teilbar ab: ca. 331 m² Nettokaltmiete ab: 16,20 €/m²/mtl. Bezug ab: nach Vereinbarung

Kurzbeschreibung

Das „WA77” - Ihr neues modernes Büro im Zentrum von Wandsbek!

In markanter Lage im Herzen von Wandsbek präsentiert sich seit 2016 dieses moderne Büro- und Geschäftshaus in einem urbanen und lebendigen Umfeld. 

In der direkten Nachbarschaft finden Sie eine sehr gute öffentliche Verkehrsanbindung sowie Einkaufsmöglichkeiten des täglichen Bedarfs wie z. B. im Einkaufszentrum „Wandsbeker Quarree“. 

Bequemes Parken garantieren Ihnen zudem die hauseigenen Innen- und Außenstellplätze.

Die Büros sind modern ausgebaut und werden in Absprache mit dem neuen Mieter renoviert übergeben.

Möchten Sie sich diese Büroflächen einmal anschauen? Dann rufen Sie uns einfach an! Wir kümmern uns um Ihr neues Büro.
 

AUSSTATTUNGSMERKMALE

  • schlüssiges Beleuchtungskonzept
  • flexible Raumaufteilung nach Mieterabsprache
  • Bodentanks inklusive KAT7-Verkabelung (vom Vormieter)
  • moderne Teeküche

Provision

Eine Anmietung erfolgt provisionsfrei für den Mieter bei einer Mietvertragslaufzeit von mindestens 5 Jahren.

Mietpreis

Der Mietpreis beträgt ab 16,20 €/m² mtl. + 3,00 €/m² mtl. Nebenkostenvorauszahlung jeweils zzgl. gesetzlicher Mehrwertsteuer und ist abhängig von der Ausstattung und der Lage im Objekt.

ANMERKUNGEN

BILDMATERIAL:
Bei dem hier zur Ansicht gestellten Bildmaterial handelt es sich um beispielhafte Mieterausbauten innerhalb des Gebäudes.

ENERGIEAUSWEIS:
Ab 01. Mai 2014 sind alle Immobilienanbieter gemäß §§ 16, 16 a EnEV (EnEV 2014) verpflichtet, in ihren Immobilienanzeigen und Exposés Angaben zu den energetischen Kennwerten der Immobilie zu veröffentlichen sowie bei Besichtigungen zu überreichen. Dieser Nachweis wurde entsprechend der gesetzlichen Vorgaben von uns bei dem Eigentümer I Vermieter abgefordert. Sofern uns ein Energieausweis bereits vorliegt, können wir Ihnen eine Kopie I das Original als Nachweis aushändigen. Für den Fall, dass uns noch kein Energieausweis vorliegt, bitten wir um Ihr Verständnis, dass dieser nachgereicht werden muss.

Das passende Objekt ist für Sie noch nicht dabei?

Über unser hier präsentiertes Portfolio hinaus führen wir weitere Objekte in der Vermietung, 
die wir jedoch nicht veröffentlichen. Sollten Sie daher Ihr Wunschobjekt noch nicht gefunden
haben, bitten wir Sie, direkt mit uns Kontakt aufzunehmen.
Wir können Ihnen weitere exklusive Angebote unterbreiten.
Auf Ihre Nachricht freuen wir uns!

040 – 211 360
info@hamburgerimmobilienteam.de

Meine Merkliste ( Einträge auf der Merkliste)
Aus Merkliste löschen
Zurück zur Suche

Diese Immobilien können sie auch interessieren.

Hier finden Sie weitere Büroflächenangebote ganz in der Nähe.

Provisionsfrei
Barmbek I Bramfeld

„Bürozentrum am Osterbekufer”

Repräsentative, helle Büros mit PKW-Stellplätzen am Osterbekkanal hier mieten!
Fläche in m² ab ca. 1.665 1665
Teilbar in m² ab ca. 247
Miete in €/m²/mtl. ab 14,80 14.80
Provisionsfrei
Barmbek I Bramfeld

„Bürozentrum am Osterbekufer”

Repräsentative, helle Büros mit PKW-Stellplätzen am Osterbekkanal hier mieten!
Fläche in m² ab ca. 1.418 1418
Teilbar in m² ab ca. 687
Miete in €/m²/mtl. ab 17,50 17.50
Provisionsfrei
Barmbek I Bramfeld

"Bürozentrum am Osterbekufer"

Repräsentative, helle Büros mit PKW-Stellplätzen am Osterbekkanal hier mieten!
Fläche in m² ab ca. 687 687
Teilbar in m² ab ca. 687
Miete in €/m²/mtl. ab 17,50 17.50
Provisionsfrei
Barmbek I Bramfeld

„Bürozentrum am Osterbekufer”

Repräsentative, helle Büros mit PKW-Stellplätzen am Osterbekkanal hier mieten!
Fläche in m² ab ca. 247 247
Teilbar in m² ab ca. 247
Miete in €/m²/mtl. ab 14,80 14.80
Provisionsfrei
Neu
Wandsbek

„FED111”

Sie suchen neue Büros im Hamburger Osten? Dann mieten Sie mit uns in Wandsbek!
Fläche in m² ab ca. 2.448 2448
Teilbar in m² ab ca. 133
Miete in €/m²/mtl. ab 13,80 13.80
Provisionsfrei
Barmbek I Bramfeld

"Bürozentrum am Osterbekufer"

Repräsentative, helle Büros mit PKW-Stellplätzen am Osterbekkanal hier mieten!
Fläche in m² ab ca. 731 731
Teilbar in m² ab ca. 731
Miete in €/m²/mtl. ab 17,50 17.50
Provisionsfrei

„WA77” - Ihr neues modernes Büro im Zentrum von Wandsbek!

Fläche in m² ab ca. 331 331
Teilbar in m² ab ca. 331
Miete in €/m²/mtl. ab 16,20 16.20
Provisionsfrei

„WA77” - Ihr neues modernes Büro im Zentrum von Wandsbek!

Fläche in m² ab ca. 528 528
Teilbar in m² ab ca. 528
Miete in €/m²/mtl. ab 16,20 16.20
Provisionsfrei

„WA77” - Ihr neues modernes Büro im Zentrum von Wandsbek!

Fläche in m² ab ca. 520 520
Teilbar in m² ab ca. 520
Miete in €/m²/mtl. ab 16,20 16.20
Provisionsfrei
Wandsbek

„WA77” Wandsbeker Allee!

Neue Büros mit einem modernen Ausbau im Hamburger Osten im Herzen von Wandsbek!
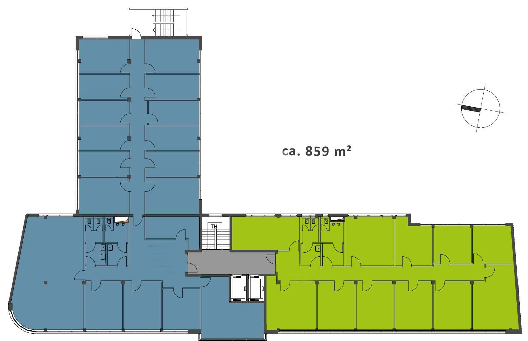
Fläche in m² ab ca. 859 859
Teilbar in m² ab ca. 331
Miete in €/m²/mtl. ab 16,20 16.20
Provisionsfrei
Wandsbek

„WA77” Wandsbeker Allee!

Neue Büros mit einem modernen Ausbau im Hamburger Osten im Herzen von Wandsbek!
Fläche in m² ab ca. 1.707 1707
Teilbar in m² ab ca. 331
Miete in €/m²/mtl. ab 16,20 16.20
Provisionsfrei
Wandsbek

„WA77” Wandsbeker Allee!

Neue Büros mit einem modernen Ausbau im Hamburger Osten im Herzen von Wandsbek!
Fläche in m² ab ca. 328 328
Teilbar in m² ab ca. 328
Miete in €/m²/mtl. ab 16,20 16.20