Repräsentative neue Büros mieten Sie hier im schicken Rathausquartier in der Hamburger Innenstadt! Brodschrangen 4, 20457 Hamburg Innenstadt (Altstadt)

UNSERE IMMOBILIENBERATER:INNEN FREUEN SICH AUF IHREN ANRUF!
Abteilung Bürovermietung
Objekt Nr. 351
Schnellübersicht
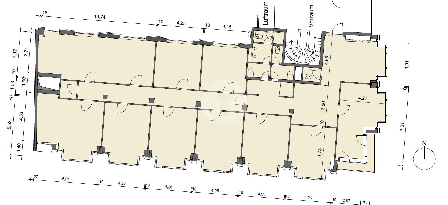
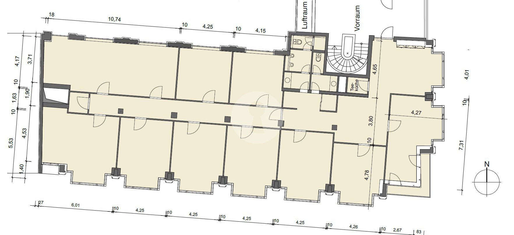
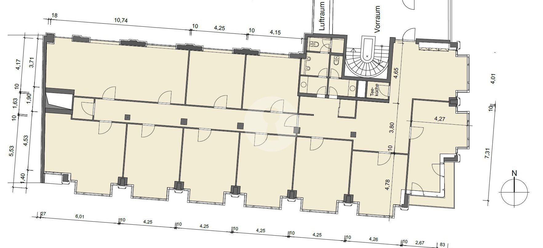
Freie Flächen: ca. 375 m² Teilbar ab: ca. 375 m² Nettokaltmiete ab: 25,00 €/m²/mtl. Bezug ab: nach VereinbarungKurzbeschreibung
Helles Citybüro im neuen schicken Rathausquartier mieten!
In werbewirksamer Ecklage inmitten der Hamburger Innenstadt präsentiert sich dieses charmante Bürohaus mit hauseigener Tiefgarage und modern ausgestatteten Büroflächen.
Über einen ansprechenden Eingangsbereich mit Personenaufzug erschließen Sie die hellen Büros.
Die unmittelbare Nachbarschaft bietet Ihnen eine vielseitige Gastronomie, zahlreiche Einkaufsmöglichkeiten und eine perfekte öffentliche Verkehrsanbindung. Die Lage inmitten des neuen Rathausquartiers ist sehr repräsentativ. Erst vor kurzem wurde hier das BID (Business Improvement District) fertiggestellt und präsentiert wunderschöne neue Straßenzüge.
In nur wenigen Gehminuten erreichen Sie die Binnenalster und den Rathausmarkt für Ihre Pause zwischendurch.
Gern zeigen wir Ihnen Ihr neues Büros. Auf Ihren Anruf freuen wir uns!
AUSSTATTUNGSMERKMALE
- repräsentativer Eingangsbereich
- helle Wohlfühlbüros mit schönen Ausblicken
- bodentiefe Fenster
- elektrischer, außenliegender Sonnenschutz
- teilweise Glaselemente wie Glaswände, Glasseitenfelder
- schlüssiges Beleuchtungskonzept
- moderne Teeküche
- KAT7-Verkabelung vom Vormieter
- hauseigene Tiefgarage
- flexible Raumaufteilung nach Mieterabsprache
Provision
Eine Anmietung erfolgt provisionsfrei für den Mieter bei einer Mietvertragslaufzeit von mindestens 5 Jahren.
Mietpreis
Der Mietpreis beträgt ab 25,00 €/m² mtl. + 5,20 €/m² mtl. Nebenkostenvorauszahlung jeweils zzgl. gesetzlicher Mehrwertsteuer und ist abhängig von der Ausstattung und der Lage im Objekt.
ANMERKUNGEN
BILDMATERIAL:
Bei dem hier zur Ansicht gestellten Bildmaterial handelt es sich um beispielhafte Mieterausbauten innerhalb des Gebäudes.
ENERGIEAUSWEIS:
Ab 01. Mai 2014 sind alle Immobilienanbieter gemäß §§ 16, 16 a EnEV (EnEV 2014) verpflichtet, in ihren Immobilienanzeigen und Exposés Angaben zu den energetischen Kennwerten der Immobilie zu veröffentlichen sowie bei Besichtigungen zu überreichen. Dieser Nachweis wurde entsprechend der gesetzlichen Vorgaben von uns bei dem Eigentümer I Vermieter abgefordert. Sofern uns ein Energieausweis bereits vorliegt, können wir Ihnen eine Kopie I das Original als Nachweis aushändigen. Für den Fall, dass uns noch kein Energieausweis vorliegt, bitten wir um Ihr Verständnis, dass dieser nachgereicht werden muss.
Das passende Objekt ist für Sie noch nicht dabei?
Über unser hier präsentiertes Portfolio hinaus führen wir weitere Objekte in der Vermietung,
die wir jedoch nicht veröffentlichen. Sollten Sie daher Ihr Wunschobjekt noch nicht gefunden
haben, bitten wir Sie, direkt mit uns Kontakt aufzunehmen.
Wir können Ihnen weitere exklusive Angebote unterbreiten.
Auf Ihre Nachricht freuen wir uns!
Diese Immobilien können sie auch interessieren.
Hier finden Sie weitere Büroflächenangebote ganz in der Nähe.