040 211 360

„Medienpark Kampnagel” - Top Büros Winterhude - Jarrestraße 2 - 6, Barmbeker Straße 2 - 12, 22301 Hamburg Winterhude „Medienpark Kampnagel”, Jarrestraße 2 - 6, Barmbeker Straße 2 - 12, 22301 Hamburg Winterhude

Neu
Winterhude

UNSERE IMMOBILIENBERATER:INNEN FREUEN SICH AUF IHREN ANRUF!

Abteilung Bürovermietung

040 - 211 360
Kontakt

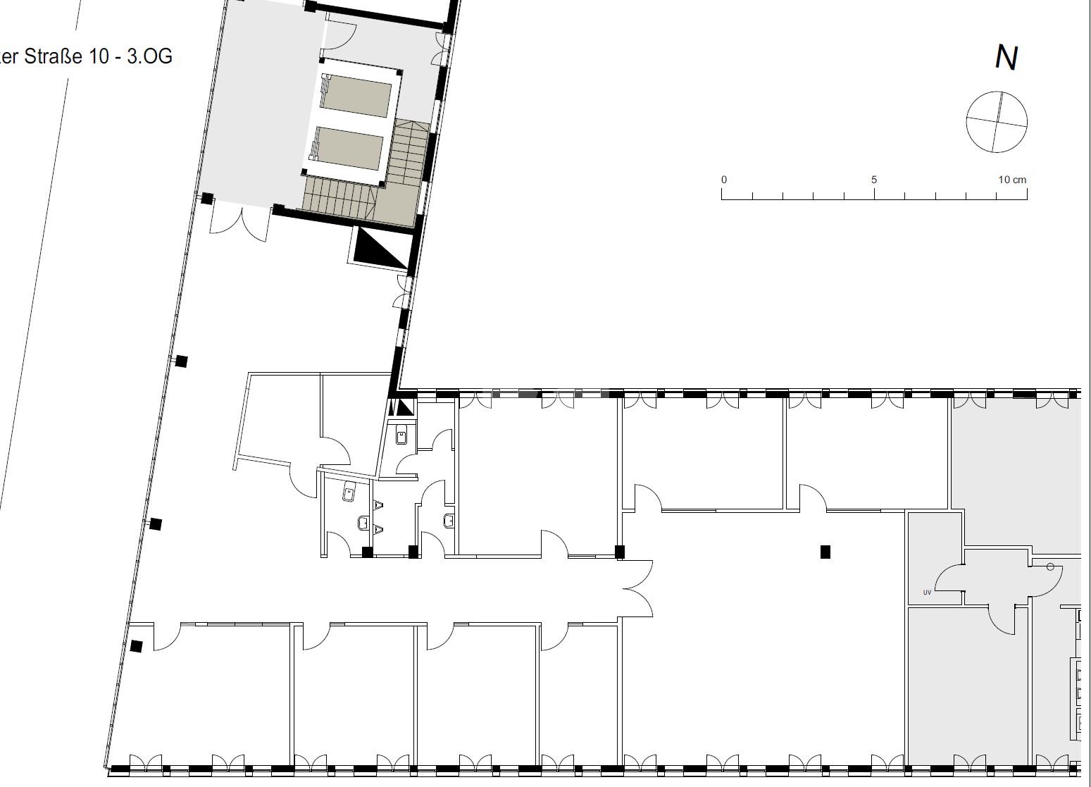
Objekt Nr. 74_310_3

Schnellübersicht

Freie Flächen: ca. 310 m² Teilbar ab: ca. 310 m² Nettokaltmiete ab: 19,00 €/m²/mtl. Bezug ab: nach Vereinbarung

Kurzbeschreibung

In markanter Stadtteillage, werbewirksam und sofort auffindbar - inmitten vom beliebten Winterhude wurde dieses moderne und architektonisch ansprechende Büro- und Geschäftshausensemble auf dem bekannten Kampnagelareal errichtet. 

Über mehrere Gebäude finden Sie schöne Büros mit einzigartigem Charme.

Über ansprechende Eingangsbereiche mit Personenaufzügen erschließen Sie die flexibel aufteilbaren Mietflächen mit moderner Ausstattung.

Teilweise verfügen die Büros über schöne Dachterrassen und Terrassen zur Wasserseite sowie bodentiefe Panoramafenster mit herrlichem Blick auf den Osterbekkanal.

Das Kampnagelareal bietet Ihnen neben attraktiven Büroflächen auch eine kulinarische Vielfalt direkt vor der Tür. 

Zudem sind Sie in nur wenigen Gehminuten in der urbanen Gertigstraße und dem Hofweg.

Gern zeigen wir Ihnen Ihr neues Büro im Herzen von Winterhude!

Auf Ihren Anruf freuen wir uns!

AUSSTATTUNGSMERKMALE

  • bodentiefe Panoramafenster für lichtdurchflutete Büros
  • elektrischer, außenliegender Sonnenschutz
  • teilweise Glaselemente wie Glaswände, Glasseitenschwerter oder Glastüren
  • teilweise unterstützende Be- und Entlüftung
  • Hohlraumboden für eine flexible Verkabelung
  • schlüssiges Beleuchtungskonzept
  • abgehängte, glatte Decken
  • Lager- und Archivflächen im Untergeschoss
  • flexible Raumaufteilung nach Mieterabsprache

Provision

Eine Anmietung erfolgt provisionsfrei für den Mieter bei einer Mietvertragslaufzeit von mindestens 5 Jahren.

Mietpreis

Der Mietpreis beträgt ab 19,00 €/m² mtl. + 4,00 €/m² mtl. Nebenkostenvorauszahlung jeweils zzgl. gesetzlicher Mehrwertsteuer und ist abhängig von der Ausstattung und der Lage im Objekt.

ANMERKUNGEN

BILDMATERIAL:
Bei dem hier zur Ansicht gestellten Bildmaterial handelt es sich um beispielhafte Mieterausbauten innerhalb des Gebäudes.

ENERGIEAUSWEIS:
Ab 01. Mai 2014 sind alle Immobilienanbieter gemäß §§ 16, 16 a EnEV (EnEV 2014) verpflichtet, in ihren Immobilienanzeigen und Exposés Angaben zu den energetischen Kennwerten der Immobilie zu veröffentlichen sowie bei Besichtigungen zu überreichen. Dieser Nachweis wurde entsprechend der gesetzlichen Vorgaben von uns bei dem Eigentümer I Vermieter abgefordert. Sofern uns ein Energieausweis bereits vorliegt, können wir Ihnen eine Kopie I das Original als Nachweis aushändigen. Für den Fall, dass uns noch kein Energieausweis vorliegt, bitten wir um Ihr Verständnis, dass dieser nachgereicht werden muss.

Das passende Objekt ist für Sie noch nicht dabei?

Über unser hier präsentiertes Portfolio hinaus führen wir weitere Objekte in der Vermietung, 
die wir jedoch nicht veröffentlichen. Sollten Sie daher Ihr Wunschobjekt noch nicht gefunden
haben, bitten wir Sie, direkt mit uns Kontakt aufzunehmen.
Wir können Ihnen weitere exklusive Angebote unterbreiten.
Auf Ihre Nachricht freuen wir uns!

040 – 211 360
info@hamburgerimmobilienteam.de

Meine Merkliste ( Einträge auf der Merkliste)
Aus Merkliste löschen
Zurück zur Suche

Diese Immobilien können sie auch interessieren.

Hier finden Sie weitere Büroflächenangebote ganz in der Nähe.

Provisionsfrei
HIT Alleinauftrag
Östliche Alsterlage (St. Georg)

„HAMBURGER WELLE”

Perfekte Gelegenheit! Repräsentativ, helle Büros, günstige Miete ab € 13,77/m²!
Fläche in m² ab ca. 1.140 1140
Teilbar in m² ab ca. 1.140
Miete in €/m²/mtl. ab 13,77 13.77
Provisionsfrei
Mit Dachterrasse
Mit Alsterblick
Innenstadt

ALSTERBLICK inklusive!

Einzigartige wunderschöne Büros in bester Adresslage direkt an der Binnenalster!
Fläche in m² ab ca. 2.583 2583
Teilbar in m² ab ca. 459
Miete in €/m²/mtl. auf Anfrage
Provisionsfrei
Neu
Mit Elbblick
Mit Dusche
Altona I Ottensen I Hafenrand

„Elbspeicher“

Erstklassige, gekühlte Büros an der Elbe bei HIT mieten. Mit tollem Elbblick!
Fläche in m² ab ca. 1.334 1334
Teilbar in m² ab ca. 1.334
Miete in €/m²/mtl. ab 21,33 21.33
Neu
Mit Elbblick
Altona I Ottensen I Hafenrand

„Holzhafen Ost” - Elbblick!

Wunderschönes Büro direkt an der Elbe mit unverbaubarem Elbblick hier mieten!
Fläche in m² ab ca. 646 646
Teilbar in m² ab ca. 646
Miete in €/m²/mtl. ab 20,90 20.90
Provisionsfrei
Neu
Mit Dachterrasse
Altona I Ottensen I Hafenrand

„DOCKLAND” - TERRASSE!

Traumbüro an der Elbe mit Dachterrasse, Kühlung & Tiefgarage bei HIT mieten!
Fläche in m² ab ca. 1.228 1228
Teilbar in m² ab ca. 1.228
Miete in €/m²/mtl. ab 25,00 25.00
Provisionsfrei
Mit Elbblick
Mit Dachterrasse
Altona I Ottensen I Hafenrand

"Holzhafen Terrassen"

Mieten Sie doch dieses Elbbüro mit Dachterrasse & Elbblick provisionsfrei hier!
Fläche in m² ab ca. 870 870
Teilbar in m² ab ca. 870
Miete in €/m²/mtl. ab 19,00 19.00
Provisionsfrei
Mit Dachterrasse
360° Ausblick
HafenCity

„WATERMARK”

Traumhafte Büros mit 360° Ausblick auf Hamburg & mega Dachterrasse hier bei HIT!
Fläche in m² ab ca. 766 766
Teilbar in m² ab ca. 765
Miete in €/m²/mtl. auf Anfrage
Provisionsfrei
Mit Dachterrasse
Mit Dusche
Innenstadt

„Holstenhof”

Schicke Innenstadtbüros im eleganten Green Building mit Dachterrasse & Dusche!
Fläche in m² ab ca. 1.599 1599
Teilbar in m² ab ca. 1.599
Miete in €/m²/mtl. ab 28,50 28.50
Provisionsfrei
Neu
Mit Dachterrasse
Innenstadt

„OPERA OFFICES NEO”

Schöne Büros zwischen Binnenalster und Gänsemarkt mit DACHTERRASSE und Garage!
Fläche in m² ab ca. 4.125 4125
Teilbar in m² ab ca. 268
Miete in €/m²/mtl. ab 25,50 25.50
Provisionsfrei
Neu
HafenCity

„Commercial Center“

Schicke Büros in der HafenCity mit Kühlung & Tiefgarage! Auch kurze Laufzeiten!
Fläche in m² ab ca. 756 756
Teilbar in m² ab ca. 370
Miete in €/m²/mtl. ab 25,00 25.00
Provisionsfrei
Neu
Mit Terrasse
E-Ladeparkplätze
City Süd (Hammerbrook)

„Lindley Carrée”

Neue gekühlte Büros in schöner Wasserlage mit modernem Neuausbau hier mieten!
Fläche in m² ab ca. 12.796 12796
Teilbar in m² ab ca. 322
Miete in €/m²/mtl. ab 16,50 16.50
Provisionsfrei
Neu
Mit Elbblick
Mit Alsterblick
Innenstadt

„TOWER AM MICHEL“ - 12. OG!

Traumhafter 360° Ausblick auf Hamburg! Gekühlte moderne Büros. Faire Miete!
Fläche in m² ab ca. 1.308 1308
Teilbar in m² ab ca. 1.308
Miete in €/m²/mtl. ab 18,35 18.35