040 211 360

„BTK18” - Repräsentative hochwertig ausgebaute und gekühlte Büros im Herzen der HafenCity mieten! „BTK18”, Brooktorkai 18, 20457 Hamburg HafenCity

Leider schon vermietet
Mit Elbblick
HafenCity

UNSERE IMMOBILIENBERATER:INNEN FREUEN SICH AUF IHREN ANRUF!

Abteilung Bürovermietung

040 - 211 360
Kontakt

Objekt Nr. 733_1625

Schnellübersicht

Freie Flächen: ca. 1.625 m² Teilbar ab: ca. 598 m² Nettokaltmiete ab: auf Anfrage Bezug ab: nach Vereinbarung

Kurzbeschreibung

„BTK18” - Erstklassige HafenCity Büros mieten Sie hier!

In markanter und werbewirksamer Sichtlage inmitten der HafenCity wurde dieses repräsentative Bürohaus mit hauseigener Tiefgarage zwischen Zollkanal und Speicherstadt errichtet.

Über eine neue repräsentative und barrierefreie Eingangshalle erschließen Sie die gekühlten, hochwertig ausgebauten und lichtdurchfluteten Büroflächen.

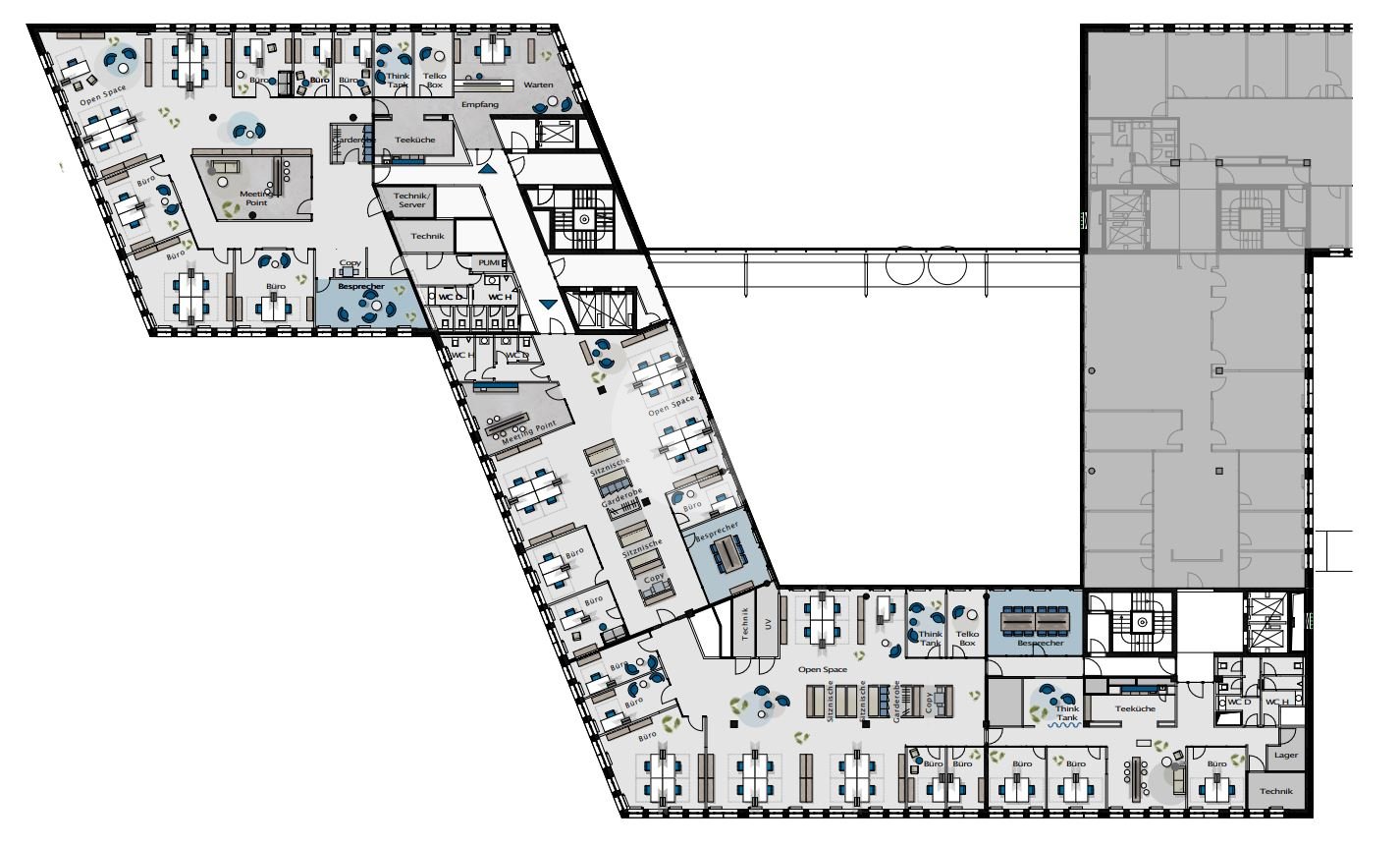
In Absprache mit den neuen Mietern erfolgt ein Neuausbau der Etagen, die Ihnen viel zusammenhängende Fläche von bis zu ca. 1.625 m² pro Ebene bieten. Durch die flexiblen Teilungsmöglichkeiten und die wirtschaftlichen Grundrisse sind alle Büroformen idealer Weise möglich. Ob Teambüros und open Space für kommunikatives Arbeiten oder das Einzel- und Doppelbüro für konzentriertes Arbeiten. Der „BTK18” bietet Ihnen alle Optionen.

Ein weiteres Highlight ist die hauseigene Kantine, die Sie begeistern wird. Bei schönem Wetter genießen Sie Ihre Mittagpause mit Terrassenplätzen direkt am Wasser.

Auch ein hauseigenes Fitnessstudio sowie eine flexibel buchbare Konferenzetage zur Wasserseite stehen Ihnen zur Verfügung.

Bequemes Parken garantiert Ihnen die hauseigene Tiefgarage, sowohl für alle Autogrößen als auch für die Fahrräder. Ausreichend E-Ladesäulen sind zudem vorhanden.

Die unmittelbare Wasserlage mit zahlreichen Verweilmöglichkeiten direkt vor der Tür bietet Ihnen und Ihren Teams vielseitige Möglichkeiten für die kurze Pause zwischendurch. Eine gastronomische Vielfalt finden Sie in nur wenigen Gehminuten sowie auch das neue „WESTFIELD Überseequartier” und den „Überseeboulevard” mit einem sehr großen Angebot an Einkaufsmöglichkeiten, Gastronomien, Hotels, Banken u. v. m.

Auch die öffentliche Anbindung mit Bus und Bahn ist schnell erreicht.

Alles in allem bietet Ihnen der „BTK18” alles, was sich ein moderner, flexibler Büronutzer heutzutage wünscht! 

Wann möchten Sie mit uns besichtigen? Rufen Sie uns einfach an oder schreiben Sie uns. Wir freuen uns auf Sie.  

AUSSTATTUNGSMERKMALE

  • repräsentativer Eingangsbereich
  • barrierefreie Erschließung
  • bodentiefe Panoramafenster für lichtdurchflutete Büros
  • elektrischer, außenliegender Sonnenschutz
  • schlüssiges Beleuchtungskonzept
  • Hohlraum- und Doppelboden für eine flexible Verkabelung
  • Glasfaseranschluss
  • hauseigenes Fitnessstudio
  • hauseigene Tiefgarage
  • E-Ladeparkplätze
  • Fahrradabstellplätze im Gebäude
  • Kantine
  • flexible Raumaufteilung nach Mieterabsprache

Provision

Eine Anmietung erfolgt provisionsfrei für den Mieter bei einer Mietvertragslaufzeit von mindestens 5 Jahren.

Mietpreis

Den Mietpreis erhalten Sie auf Anfrage und ist abhängig von der Ausstattung und der Lage im Objekt.

ANMERKUNGEN

BILDMATERIAL:
Bei dem hier zur Ansicht gestellten Bildmaterial handelt es sich um beispielhafte Mieterausbauten innerhalb des Gebäudes.

ENERGIEAUSWEIS:
Ab 01. Mai 2014 sind alle Immobilienanbieter gemäß §§ 16, 16 a EnEV (EnEV 2014) verpflichtet, in ihren Immobilienanzeigen und Exposés Angaben zu den energetischen Kennwerten der Immobilie zu veröffentlichen sowie bei Besichtigungen zu überreichen. Dieser Nachweis wurde entsprechend der gesetzlichen Vorgaben von uns bei dem Eigentümer I Vermieter abgefordert. Sofern uns ein Energieausweis bereits vorliegt, können wir Ihnen eine Kopie I das Original als Nachweis aushändigen. Für den Fall, dass uns noch kein Energieausweis vorliegt, bitten wir um Ihr Verständnis, dass dieser nachgereicht werden muss.

Das passende Objekt ist für Sie noch nicht dabei?

Über unser hier präsentiertes Portfolio hinaus führen wir weitere Objekte in der Vermietung, 
die wir jedoch nicht veröffentlichen. Sollten Sie daher Ihr Wunschobjekt noch nicht gefunden
haben, bitten wir Sie, direkt mit uns Kontakt aufzunehmen.
Wir können Ihnen weitere exklusive Angebote unterbreiten.
Auf Ihre Nachricht freuen wir uns!

040 – 211 360
info@hamburgerimmobilienteam.de

Meine Merkliste ( Einträge auf der Merkliste)
Aus Merkliste löschen
Zurück zur Suche

Diese Immobilien können sie auch interessieren.

Hier finden Sie weitere Büroflächenangebote ganz in der Nähe.

Provisionsfrei
HIT Alleinauftrag
Mit Terrasse
Mit Alsterblick
Innenstadt

„ESPLANADEBAU”

Büros mit Terrasse & Alsterblick. Nur 50 m zur Alster. Kurze Laufzeit möglich!
Fläche in m² ab ca. 6.773 6773
Teilbar in m² ab ca. 1.165
Miete in €/m²/mtl. ab 18,00 18.00
Provisionsfrei
Mit Alsterblick
Östliche Alsterlage (St. Georg)

„ADA47” Alsterbüros!

Das beste Alsterbüro mieten Sie hier. Repräsentativ, modern & PKW-Stellplätze!
Fläche in m² ab ca. 465 465
Teilbar in m² ab ca. 465
Miete in €/m²/mtl. ab 21,50 21.50
Provisionsfrei
Mit Dusche
360° Ausblick
Innenstadt

„EMPORIO TOWER”

Traumbüros - Hoch hinaus mit spektakulärem Panoramablick in Bestlage der City!
Fläche in m² ab ca. 1.081 1081
Teilbar in m² ab ca. 1.081
Miete in €/m²/mtl. ab 27,50 27.50
Provisionsfrei
HIT Alleinauftrag
Mit Alsterblick
Östliche Alsterlage (St. Georg)

„KONTORHAUS ALSTER”

Top Alsterbüros mit Alsterblick, Kantine & Garage in werbewirksamer Adresslage!
Fläche in m² ab ca. 300 300
Teilbar in m² ab ca. 300
Miete in €/m²/mtl. ab 20,00 20.00
Neu
HIT Alleinauftrag
Innenstadt

NEUER WALL!

Traumbüro mit hochwertiger repräsentativer Ausstattung in Bestlage Neuer Wall!
Fläche in m² ab ca. 561 561
Teilbar in m² ab ca. 561
Miete in €/m²/mtl. ab 27,80 27.80
Provisionsfrei
Neu
HIT Alleinauftrag
City Süd (Hammerbrook)

„DOCK45”

Sofort beziehbar! Hochwertig ausgebautes City Süd Büro mit PKW-Stellplätzen!
Fläche in m² ab ca. 405 405
Teilbar in m² ab ca. 405
Miete in €/m²/mtl. ab 15,00 15.00
Provisionsfrei
Exklusiv nur bei HIT
Östliche Alsterlage (St. Georg)

„HANDELSHOF" - Lange Reihe!

Repräsentatives, hochwertig ausgebautes Büro in Bestlage von St. Georg bei HIT!
Fläche in m² ab ca. 447 447
Teilbar in m² ab ca. 447
Miete in €/m²/mtl. ab 17,50 17.50
Provisionsfrei
Neu
Mit Dachterrasse
Mit Elbblick
Innenstadt

„BOA VISTA” - DACHTERRASSE!

Schicke Büros an der Elbe mit Dachterrasse, Kühlung, PKW-Stellplätzen mieten!
Fläche in m² ab ca. 3.789 3789
Teilbar in m² ab ca. 204
Miete in €/m²/mtl. ab 23,00 23.00
Provisionsfrei
Neu
Mit Elbblick
HafenCity

"QUAI54"

Repräsentative hochwertig ausgebaute Büros mit Kühlung im Herzen der HafenCity!
Fläche in m² ab ca. 560 560
Teilbar in m² ab ca. 560
Miete in €/m²/mtl. ab 28,50 28.50
Provisionsfrei
Neu
Mit Elbblick
HafenCity

„HAFENCITY GATE”

Traumbüros in der HafenCity! Direkt an der Elbphilharmonie inklusive Elbblick!
Fläche in m² ab ca. 481 481
Teilbar in m² ab ca. 481
Miete in €/m²/mtl. ab 25,50 25.50
Provisionsfrei
Mit Elbblick
HafenCity

„Columbus Haus”

Spektakuläre HafenCitybüros mit Elbblick und Terrasse mieten Sie hier bei HIT!
Fläche in m² ab ca. 1.028 1028
Teilbar in m² ab ca. 514
Miete in €/m²/mtl. ab 30,50 30.50
Provisionsfrei
Mit Terrasse
Mit Elbblick
HafenCity

„Columbus Haus“

Spektakuläre HafenCitybüros mit Elbblick und Terrasse mieten Sie hier bei HIT!
Fläche in m² ab ca. 1.590 1590
Teilbar in m² ab ca. 434
Miete in €/m²/mtl. ab 18,50 18.50