040 211 360

„ASTRATURM” - Traumbüros mit Dachterrasse und Elbblick auf St. Pauli in beliebter Szenelage hier bei HIT zu vermieten! „ASTRATURM”, Zirkusweg 2, 20359 Hamburg St. Pauli

Mit Dachterrasse
St. Pauli

UNSERE IMMOBILIENBERATER:INNEN FREUEN SICH AUF IHREN ANRUF!

Abteilung Bürovermietung

040 - 211 360
Kontakt

Objekt Nr. 49_621_3

Schnellübersicht

Freie Flächen: ca. 621 m² Teilbar ab: ca. 621 m² Nettokaltmiete ab: 22,00 €/m²/mtl. Bezug ab: nach Vereinbarung

Kurzbeschreibung

Herzlich Willkommen im „ASTRATURM”! 

In markanter und werbewirksamer Sichtlage präsentiert sich der namhafte „ASTRATURM” mit 17 exklusiv ausgestatteten Etagen im beliebten Hamburger Stadtteil St. Pauli.

Über einen erstklassigen, barrierefreien Eingangsbereich mit Concierge Service erschließen Sie die lichtdurchfluteten Büros mit bodentiefen Panoramafenstern.

Im Dachgeschoss finden Sie eine umlaufende Dachterrasse mit einem spektakulären 360° - Ausblick auf unsere schöne Stadt, die von allen Mietern des Gebäudes genutzt werden darf.

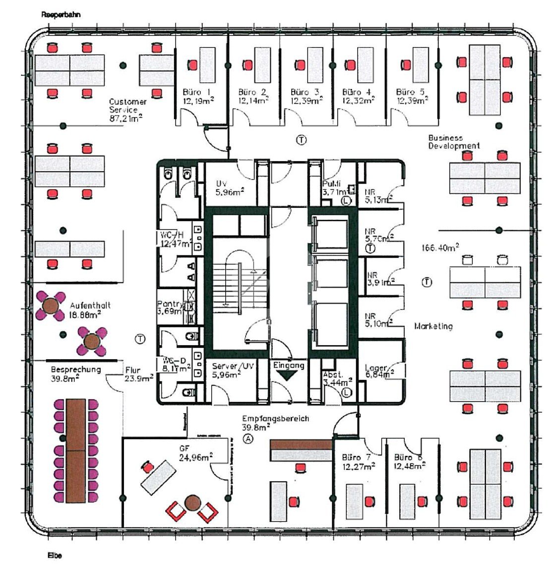
Die Büroflächen sind flexibel aufteilbar und werden nach Mieterwunsch ausgebaut. Ein Blick lohnt sich.

Wann möchten Sie einmal mit uns zusammen in diese erstklassigen Büros im „ASTRATURM” rein schauen? Gern zeigen wir Ihnen Ihr neues Büro. Wir freuen uns auf Sie!

AUSSTATTUNGSMERKMALE

  • Dachterrasse
  • Concierge Service im Gebäude
  • barrierefreie Erschließung
  • Kühlung durch Betonkernaktivierung für ein angenehmes Raumklima
  • bodentiefe Panoramafenster für lichtdurchflutete Büros
  • elektrischer, außenliegender Sonnenschutz
  • neuer Bodenbelag
  • hochwertige Teeküchen und Sanitäreinheiten
  • hauseigene Tiefgarage mit Einzelparkern
  • flexible Raumaufteilung nach Mieterabsprache

Provision

Eine Anmietung erfolgt provisionsfrei für den Mieter bei einer Mietvertragslaufzeit von mindestens 5 Jahren.

Mietpreis

Der Mietpreis beträgt ab 22,00 €/m² mtl. + Nebenkostenvorauszahlung jeweils zzgl. gesetzlicher Mehrwertsteuer und ist abhängig von der Ausstattung und der Lage im Objekt.

ANMERKUNGEN

BILDMATERIAL:
Bei dem hier zur Ansicht gestellten Bildmaterial handelt es sich um beispielhafte Mieterausbauten innerhalb des Gebäudes.

ENERGIEAUSWEIS:
Ab 01. Mai 2014 sind alle Immobilienanbieter gemäß §§ 16, 16 a EnEV (EnEV 2014) verpflichtet, in ihren Immobilienanzeigen und Exposés Angaben zu den energetischen Kennwerten der Immobilie zu veröffentlichen sowie bei Besichtigungen zu überreichen. Dieser Nachweis wurde entsprechend der gesetzlichen Vorgaben von uns bei dem Eigentümer I Vermieter abgefordert. Sofern uns ein Energieausweis bereits vorliegt, können wir Ihnen eine Kopie I das Original als Nachweis aushändigen. Für den Fall, dass uns noch kein Energieausweis vorliegt, bitten wir um Ihr Verständnis, dass dieser nachgereicht werden muss.

Das passende Objekt ist für Sie noch nicht dabei?

Über unser hier präsentiertes Portfolio hinaus führen wir weitere Objekte in der Vermietung, 
die wir jedoch nicht veröffentlichen. Sollten Sie daher Ihr Wunschobjekt noch nicht gefunden
haben, bitten wir Sie, direkt mit uns Kontakt aufzunehmen.
Wir können Ihnen weitere exklusive Angebote unterbreiten.
Auf Ihre Nachricht freuen wir uns!

040 – 211 360
info@hamburgerimmobilienteam.de

Meine Merkliste ( Einträge auf der Merkliste)
Aus Merkliste löschen
Zurück zur Suche

Diese Immobilien können sie auch interessieren.

Hier finden Sie weitere Büroflächenangebote ganz in der Nähe.

Provisionsfrei
HIT Alleinauftrag
Mit Terrasse
Mit Alsterblick
Innenstadt

„ESPLANADEBAU”

Büros mit Terrasse & Alsterblick. Nur 50 m zur Alster. Kurze Laufzeit möglich!
Fläche in m² ab ca. 1.661 1661
Teilbar in m² ab ca. 134
Miete in €/m²/mtl. ab 18,00 18.00
Provisionsfrei
Mit Dusche
360° Ausblick
Innenstadt

„EMPORIO TOWER”

Traumbüros - Hoch hinaus mit spektakulärem Panoramablick in Bestlage der City!
Fläche in m² ab ca. 1.081 1081
Teilbar in m² ab ca. 1.081
Miete in €/m²/mtl. ab 27,50 27.50
Neu
HIT Alleinauftrag
Innenstadt

NEUER WALL!

Traumbüro mit hochwertiger repräsentativer Ausstattung in Bestlage Neuer Wall!
Fläche in m² ab ca. 561 561
Teilbar in m² ab ca. 561
Miete in €/m²/mtl. ab 27,80 27.80
Provisionsfrei
Neu
Mit Dachterrasse
Mit Elbblick
Innenstadt

„BOA VISTA” - DACHTERRASSE!

Schicke Büros an der Elbe mit Dachterrasse, Kühlung, PKW-Stellplätzen mieten!
Fläche in m² ab ca. 3.789 3789
Teilbar in m² ab ca. 204
Miete in €/m²/mtl. ab 23,00 23.00
Provisionsfrei
Mit Dachterrasse
Mit Elbblick
St. Pauli

„ASTRATURM”-Dachterrasse!

HIT vermietet Traumbüros mit Elbblick & Dachterrasse in Szenelage auf St. Pauli!
Fläche in m² ab ca. 1.685 1685
Teilbar in m² ab ca. 323
Miete in €/m²/mtl. ab 20,00 20.00
Provisionsfrei
Mit Terrasse
Mit Elbblick
HafenCity

„Columbus Haus“

Spektakuläre HafenCitybüros mit Elbblick und Terrasse mieten Sie hier bei HIT!
Fläche in m² ab ca. 1.590 1590
Teilbar in m² ab ca. 434
Miete in €/m²/mtl. ab 18,50 18.50
Provisionsfrei
Mit Terrasse
Innenstadt

"BORNHOLDHAUS" - Terrasse!

Erstklassig und exklusiv in bester Adresslage direkt am Neuen Wall mit Terrasse!
Fläche in m² ab ca. 1.046 1046
Teilbar in m² ab ca. 609
Miete in €/m²/mtl. ab 36,00 36.00
Provisionsfrei
Neu
Innenstadt

"NEW41"

Schicke Büros direkt am Neuen Wall mit Kühlung und Alsterfleetblick hier mieten!
Fläche in m² ab ca. 289 289
Teilbar in m² ab ca. 289
Miete in €/m²/mtl. ab 32,50 32.50
Provisionsfrei
Neu
Mit Terrasse
Mit Elbblick
HafenCity

„Columbus Haus”

Spektakuläre HafenCitybüros mit Elbblick und Terrasse mieten Sie hier bei HIT!
Fläche in m² ab ca. 3.766 3766
Teilbar in m² ab ca. 142
Miete in €/m²/mtl. ab 18,00 18.00
Provisionsfrei
Neu
Mit Elbblick
HafenCity

„HAFENCITY GATE”

Traumbüros in der HafenCity! Direkt an der Elbphilharmonie inklusive Elbblick!
Fläche in m² ab ca. 481 481
Teilbar in m² ab ca. 481
Miete in €/m²/mtl. ab 25,50 25.50
Provisionsfrei
Leider schon vermietet
Neu
Innenstadt

Top Büro Hohe Bleichen!

In Hamburger Bestlage finden Sie schicke Citybüros mit hochwertigem Neuausbau!
Fläche in m² ab ca. 321 321
Teilbar in m² ab ca. 321
Miete in €/m²/mtl. auf Anfrage
Provisionsfrei
Innenstadt

"Europa Passage"

Zwischen Alster und Rathaus! Perfekte Büros mit viel zusammenhängender Fläche!
Fläche in m² ab ca. 13.988 13988
Teilbar in m² ab ca. 692
Miete in €/m²/mtl. ab 21,00 21.00