„HOLZHAFEN WEST" - Repräsentative neue Büros mit Terrasse direkt an der Elbe jetzt bei HIT mieten! „HOLZHAFEN WEST", Große Elbstraße 59 - 63, 22767 Hamburg Altona (Hafenrand)

UNSERE IMMOBILIENBERATER:INNEN FREUEN SICH AUF IHREN ANRUF!
Abteilung Bürovermietung
Objekt Nr. 1_1160
Schnellübersicht
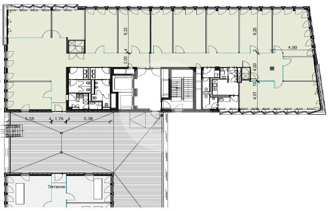
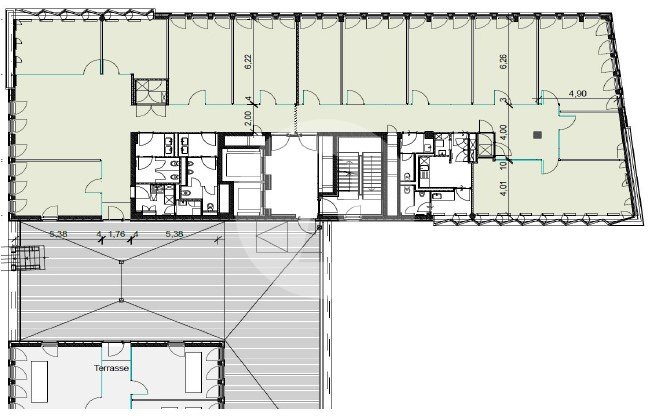
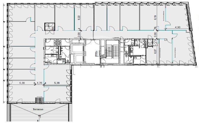
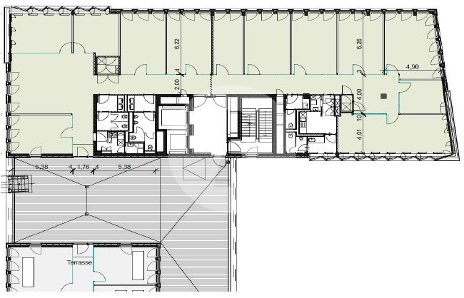
Freie Flächen: ca. 1.160 m² Teilbar ab: ca. 517 m² Nettokaltmiete ab: 26,00 €/m²/mtl. Bezug ab: nach VereinbarungKurzbeschreibung
Mieten Sie hier Ihr neues Elbbüro im „HOLZHAFEN WEST" - Mit Terrasse!
Der „Holzhafen West" ist ein imposantes Bürohaus in der ersten Reihe des Hamburger Elbufers an Hamburgs ältestem erhaltenen Hafenbecken.
Neben einem Maximum an Blickbeziehungen zur Elbe bietet das Bürogebäude eine hochwertige Ausstattung und flexible, effiziente Grundrisse für alle Büroformen. Ganz gleich, ob das Einzelbüro für konzentriertes Arbeiten, Doppel- oder Teambüros und auch open Space Flächen für kommunikatives Arbeiten. Alles ist idealerweise möglich und wird in Mieterabsprache hergerichtet.
Über einen repräsentativen, barrierefreien Eingangsbereich mit Personenaufzügen erschließen Sie diese einzigartigen gekühlten Büroflächen, die Ihnen auch an heißen Sommertagen eine sehr angenehme Arbeitsatmosphäre bieten.
Die Ausblicke auf die Elbe sind fantastisch und ein großer Mehrwert ist die schöne Terrasse mit direktem Wasserbezug.
Bequemes Parken bietet Ihnen die hauseigene Tiefgarage auf komfortablen Einzelparkern für alle Autogrößen.
Was wollen Sie mehr? Rufen Sie uns einfach an. Gern zeigen wir Ihnen diese tollen Büros im „HOLZHAFEN WEST"!
AUSSTATTUNGSMERKMALE
- Terrasse
- repräsentativer Eingangsbereich
- Kühlung für ein angenehmes Raumklima auch an heißen Sommertagen
- bodentiefe Panoramafenster für lichtdurchflutete Büros
- Sonnenschutzverglasung und Lamellenblendschutz
- abgehängte, glatte Decken
- Hohlraum- und Doppelboden für eine flexible Verkabelung
- Bodentanks inklusive EDV-Verkabelung vom Vormieter
- schlüssiges Beleuchtungskonzept
- flexible Raumaufteilung nach Mieterabsprache
Provision
Eine Anmietung erfolgt provisionsfrei für den Mieter bei einer Mietvertragslaufzeit von mindestens 5 Jahren.
Mietpreis
Der Mietpreis beträgt ab 26,00 €/m² mtl. + 5,60 €/m² mtl. Nebenkostenvorauszahlung jeweils zzgl. gesetzlicher Mehrwertsteuer und ist abhängig von der Ausstattung und der Lage im Objekt.
ANMERKUNGEN
BILDMATERIAL:
Bei dem hier zur Ansicht gestellten Bildmaterial handelt es sich um beispielhafte Mieterausbauten innerhalb des Gebäudes.
ENERGIEAUSWEIS:
Ab 01. Mai 2014 sind alle Immobilienanbieter gemäß §§ 16, 16 a EnEV (EnEV 2014) verpflichtet, in ihren Immobilienanzeigen und Exposés Angaben zu den energetischen Kennwerten der Immobilie zu veröffentlichen sowie bei Besichtigungen zu überreichen. Dieser Nachweis wurde entsprechend der gesetzlichen Vorgaben von uns bei dem Eigentümer I Vermieter abgefordert. Sofern uns ein Energieausweis bereits vorliegt, können wir Ihnen eine Kopie I das Original als Nachweis aushändigen. Für den Fall, dass uns noch kein Energieausweis vorliegt, bitten wir um Ihr Verständnis, dass dieser nachgereicht werden muss.
Das passende Objekt ist für Sie noch nicht dabei?
Über unser hier präsentiertes Portfolio hinaus führen wir weitere Objekte in der Vermietung,
die wir jedoch nicht veröffentlichen. Sollten Sie daher Ihr Wunschobjekt noch nicht gefunden
haben, bitten wir Sie, direkt mit uns Kontakt aufzunehmen.
Wir können Ihnen weitere exklusive Angebote unterbreiten.
Auf Ihre Nachricht freuen wir uns!
Diese Immobilien können sie auch interessieren.
Hier finden Sie weitere Büroflächenangebote ganz in der Nähe.